Four-bedroom freehold near UEA — ready for buy-to-let or shared living.
Chain free freehold four-bedroom semi-detached house
Close to University of East Anglia and Norfolk & Norwich Hospital
Good tenant appeal: garage, driveway, enclosed garden, full‑fibre broadband
Double glazing and gas central heating; built 2003–2006 (modern build)
Overall size modest at 829 sq ft — rooms suitable for sharers/students
Area very deprived and crime rate above average — affects lettings/insurance
Council Tax Band C (affordable); fast broadband and average mobile signal
No flooding risk; parking for multiple cars but internal space limited
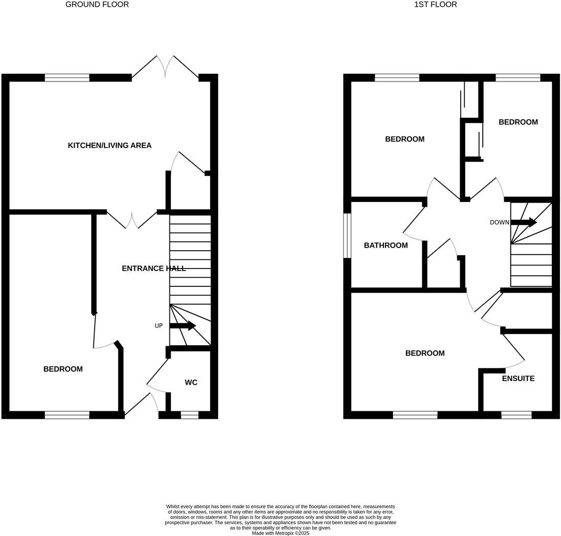
This modern four-bedroom semi-detached house on Alicante Way is presented as a straightforward investment opportunity close to the University of East Anglia and the Norfolk & Norwich University Hospital. At 829 sq ft, the layout includes a ground-floor bedroom and WC, an open kitchen/living area, three first-floor bedrooms (one with en‑suite) and a family bathroom — a practical arrangement for student lets or professional sharers.
The property is freehold and chain free, with double glazing, mains gas central heating, off-street parking and a single garage. A decent enclosed rear garden and full‑fibre broadband add to tenant appeal. The construction date (2003–2006) and insulated cavity walls suggest straightforward maintenance rather than major immediate works.
Buyers should weigh the strong rental location against local social and economic factors. The area is classified as very deprived and records above‑average crime — factors that can affect letting strategy, tenancy screening and insurance costs. The house is modest in overall size, so it suits rental configurations rather than buyers seeking large family living space.
For an investor targeting consistent demand from students and hospital staff, this property offers quick entry to the local lettings market, affordable council tax banding and the convenience of parking and a garage. For owner‑occupiers, the size and local demographics should be considered against personal requirements.
4 bedroom semi-detached house for sale in Old School Close, Norwich, NR5 — £270,000 • 4 bed • 2 bath • 840 ft²
3 bedroom semi-detached house for sale in Enfield Road, Norwich, NR5 — £260,000 • 3 bed • 1 bath • 915 ft²
4 bedroom semi-detached house for sale in Alicante Way, West Norwich, NR5 — £270,000 • 4 bed • 2 bath • 474 ft²
4 bedroom semi-detached house for sale in Rachel Close, Norwich, NR5 — £207,500 • 4 bed • 1 bath • 694 ft²
4 bedroom semi-detached house for sale in St. Mildreds Road, Norwich, NR5 — £220,000 • 4 bed • 1 bath • 713 ft²
3 bedroom semi-detached house for sale in George Borrow Road, Norwich, NR4 — £260,000 • 3 bed • 2 bath • 862 ft²






















































