Extended family home with garden and driveway near UEA and hospital.
Chain-free detached three-bedroom house with single garage
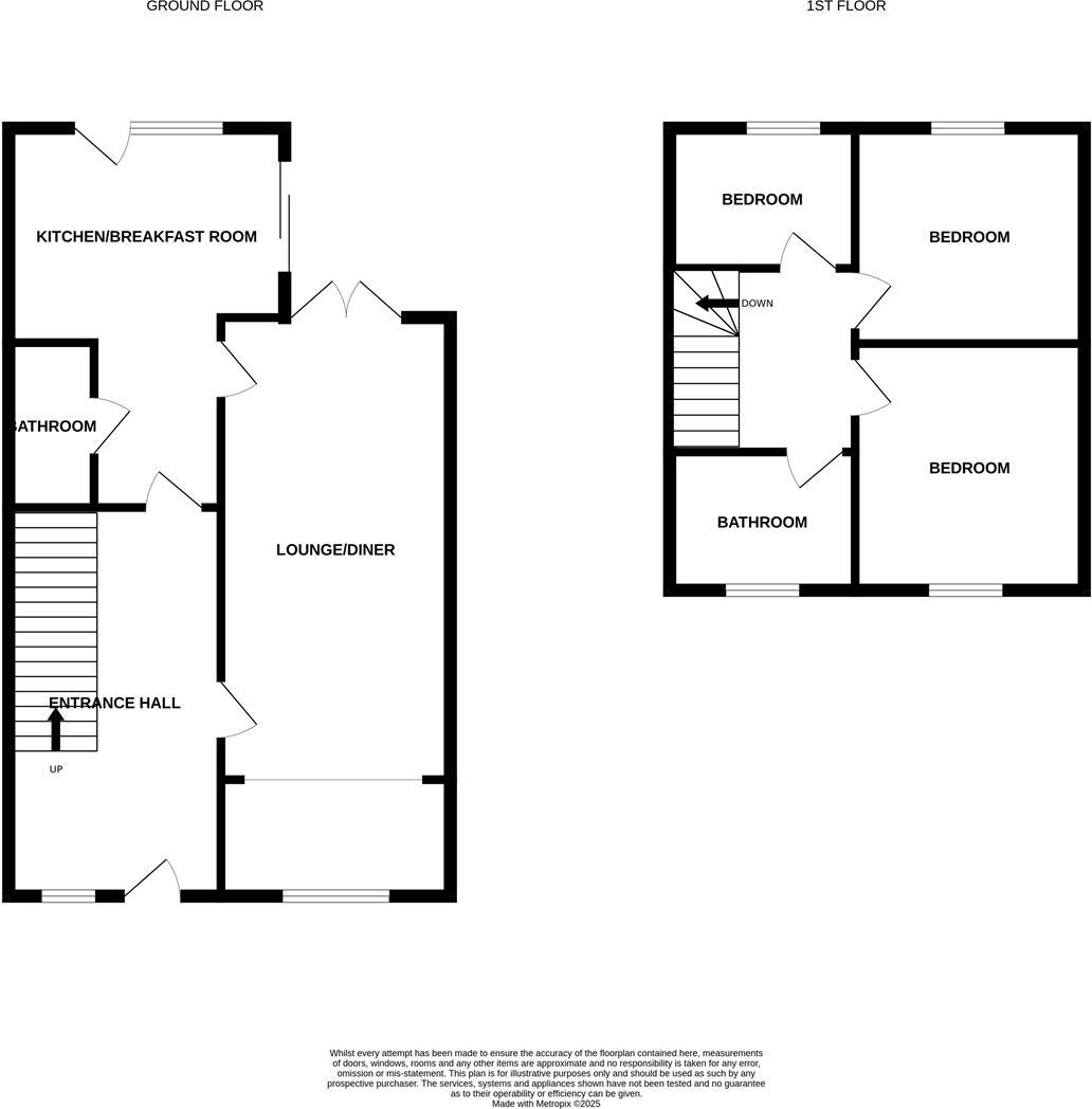
An extended three-bedroom detached house offered chain-free, set on a decent plot to the west of Norwich. The ground floor offers a bright lounge/diner and a sizeable kitchen/breakfast room with patio access to a mature enclosed garden and single garage — practical for family life or rental occupancy. Heating is mains gas with a boiler and radiators, and the house benefits from double glazing and full-fibre broadband.
The property sits close to the University of East Anglia and the Norfolk & Norwich University Hospital, with good local shops, schools and public transport links; convenient road access to the ring road, A47 and A11. The layout is flexible for families needing three bedrooms and two bathrooms, or for investors seeking a let-ready suburban home.
Buyers should note the house was built circa 1900–1929 with solid brick walls that likely lack modern cavity insulation and the current EPC is band D (63). The wider area shows higher-than-average crime and local deprivation indicators; the interior presents as lived-in and would benefit from cosmetic updating to reach full potential. Overall, this is a straightforward, chain-free purchase with clear scope for improvement and value uplift for the right buyer.
3 bedroom detached house for sale in Corie Road, Norwich, NR4 — £350,000 • 3 bed • 1 bath • 712 ft²
3 bedroom detached house for sale in Corie Road, Norwich, NR4 — £425,000 • 3 bed • 2 bath
4 bedroom semi-detached house for sale in Old School Close, Norwich, NR5 — £280,000 • 4 bed • 2 bath • 840 ft²
5 bedroom link detached house for sale in Oak Lane, Norwich, NR3 — £425,000 • 5 bed • 1 bath • 1257 ft²
3 bedroom semi-detached house for sale in Borrowdale Drive, Norwich, NR1 — £240,000 • 3 bed • 1 bath • 721 ft²
3 bedroom detached house for sale in Norwich, NR5 — £200,000 • 3 bed • 1 bath • 786 ft²


































































