EH6 5BF - 2 bedroom flat for sale in 6/31 Pilrig Heights, Pilrig, Edi…

View on Property Piper

2 bedroom flat for sale in 6/31 Pilrig Heights, Pilrig, Edinburgh, EH6 5BF, EH6

Summary - 6/31, PILRIG HEIGHTS, EDINBURGH EH6 5BF

2 bed 2 bath Flat

**Standout Features:**
- Two well-sized bedrooms, including a principal bedroom with ensuite and built-in wardrobe
- Spacious living/dining room perfect for entertaining
- Modern kitchen with ample cupboard storage
- Communal gym and landscaped gardens
- Residents' off-street parking
- Excellent local amenities and public transport accessibility
- EPC Rating B, service charge at £1,700 annually

**Potential Concerns:**
- EWS1 certificate is unavailable
- General maintenance may require attention in some areas

Nestled in the vibrant Pilrig district of Edinburgh, this well-maintained two-bedroom apartment provides an ideal blend of comfort and convenience. The expansive living/dining area invites gatherings, while the modern kitchen is designed for both functionality and ease of use. Enjoy the luxury of a principal bedroom with an ensuite and built-in storage, alongside a spacious second bedroom—an excellent setup for both individuals and families. Residents will appreciate the added benefits of a communal gym and landscaped gardens, fostering community spirit.

With its excellent local amenities and quick public transport links, this property is perfect for students and professionals seeking a cosmopolitan lifestyle. While the overall condition is good, there may be some maintenance areas needing attention, and the absence of an EWS1 certificate should be noted. Priced competitively at £230,000, this is an incredible opportunity to secure a delightful apartment in a sought-after area. Act quickly, as properties like this don't stay on the market for long!

Property Details

Brochure Descriptions

Image Descriptions

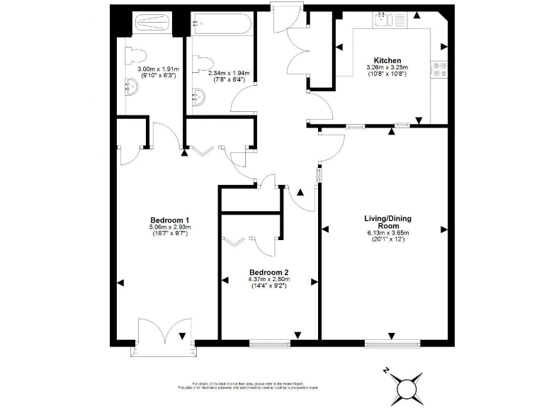
Floorplan Description

Rooms

Textual Property Features

Detected Visual Features

Nearest Bars And Restaurants

,,,,}

Nearest General Shops

,,}

Nearest Grocery shops

,,}

Nearest Supermarkets

,,}

Nearest Religious buildings

,,}

Nearest Medical buildings

,,,}

Nearest Airports

}

Nearest Leisure Facilities

,,,,}

Nearest Tourist attractions

,,}

Nearest Train stations

,,,,}

Nearest Bus stations and stops

,,,,}

Nearest Hotels

,,}

Tags

Local Market Stats

AirBnB Data

Similar Properties

Meta

High Res Images

Compatible Images

Low res Images

Thumbnails

Raw Images

High Res Floorplan Images

Compatible Floorplan Images

Low res Floorplan Images

FloorplanImages Thumbnail

Raw Floorplan Images