Central Bedminster shop with flat and clear redevelopment upside.
Vacant possession: shop and 1-bed flat offered vacant
Estimated rental potential circa £22,000pa once let (to verify)
Requires renovation throughout; cosmetic and likely systems updating
Potential to convert shop to additional flat or 2-bed house, subject to consent
Buyer’s premium (£1,800 + VAT) and preliminary deposit required for auction
No private garden; street-facing outlook only
EPC Ratings: Shop D; Flat D
Freehold mid-terrace, constructed pre-1900, small plot
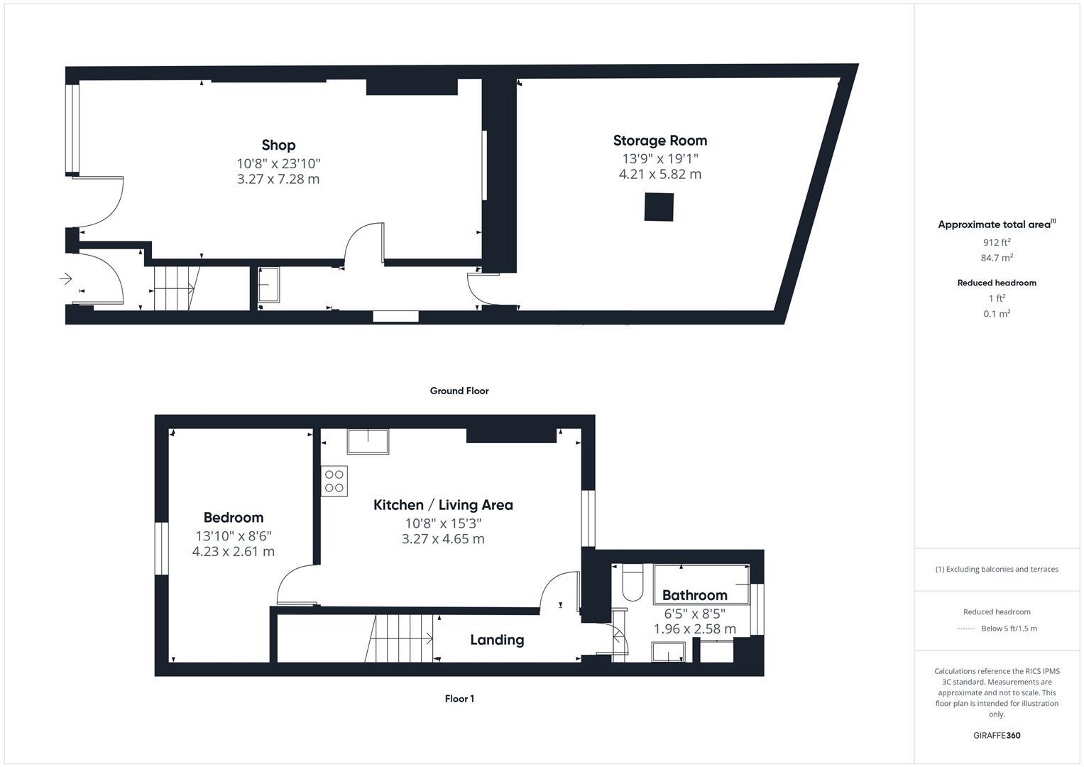
Located on West Street in the heart of Bedminster, this mixed-use mid-terrace building offers a ground-floor shop with generous rear storage and a self-contained one-bedroom flat above. The property is offered with vacant possession and presents a clear opportunity for an investor or an owner-occupier looking to add value through refurbishment or redevelopment.
The building requires updating throughout; the flat and shop are functional but dated, with EPC ratings of D. Subject to obtaining the necessary consents the shop could be converted into additional residential accommodation or the whole building reconfigured into a two-bedroom house, unlocking greater rental or sales value.
For purchasers planning to bid at auction, note the sale is on 18 December 2025 with a preliminary deposit and a buyer’s premium payable on exchange. The guide suggests potential rental income of around £22,000 per annum once let, but this should be verified by your advisors.
This is a compact, city-centre plot with no private garden and limited external amenity space. It will suit buyers who prioritise location, rental yield potential and redevelopment scope over immediate turnkey living space.
Commercial development for sale in Two Mile Hill Road, Kingswood, Bristol, BS15 — £360,000 • 1 bed • 1 bath • 1426 ft²
2 bedroom house for sale in MIXED USE | £21,540 pa | SHIREHAMPTON, BS11 — £150,000 • 2 bed • 2 bath • 1445 ft²
Commercial property for sale in MIXED USE | £21,540 pa | SHIREHAMPTON, BS11 — £150,000 • 2 bed • 2 bath • 1445 ft²
Commercial property for sale in Mixed Use | Kingswood, BS15 — £275,000 • 2 bed • 2 bath • 1938 ft²
1 bedroom terraced house for sale in West Street, Bristol, BS3 — £250,000 • 1 bed • 1 bath • 934 ft²
2 bedroom block of apartments for sale in 2 FLATS - Easton Road, Easton, Bristol, BS5 — £200,000 • 2 bed • 1 bath • 515 ft²


















































