SK22 3JR - Land for sale in Land at 210 Albion Road, New Mills, High P…

View on Property Piper

Land for sale in Land at 210 Albion Road, New Mills, High Peak SK22 3JR, SK22

Summary - 175 Land at 210 Albion Road, New Mills, High Peak SK22 3JR SK22 3JR

1 bed 1 bath Land

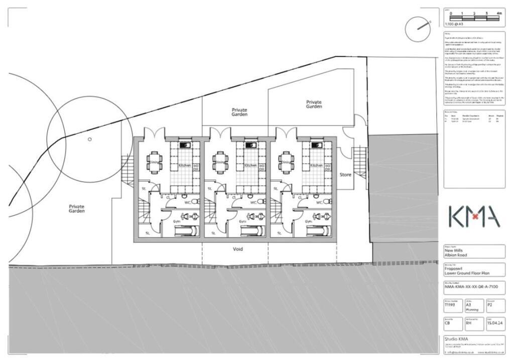
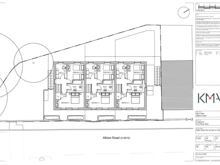
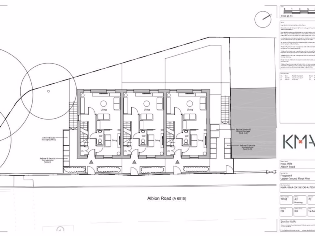
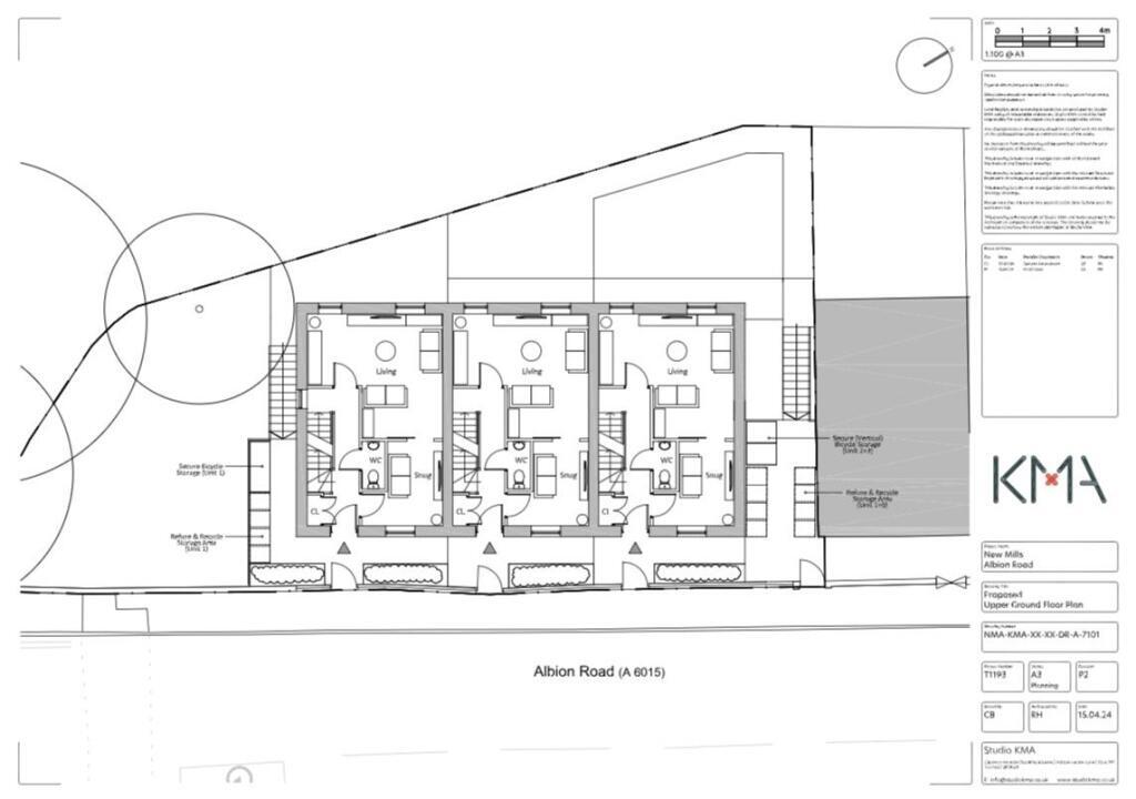
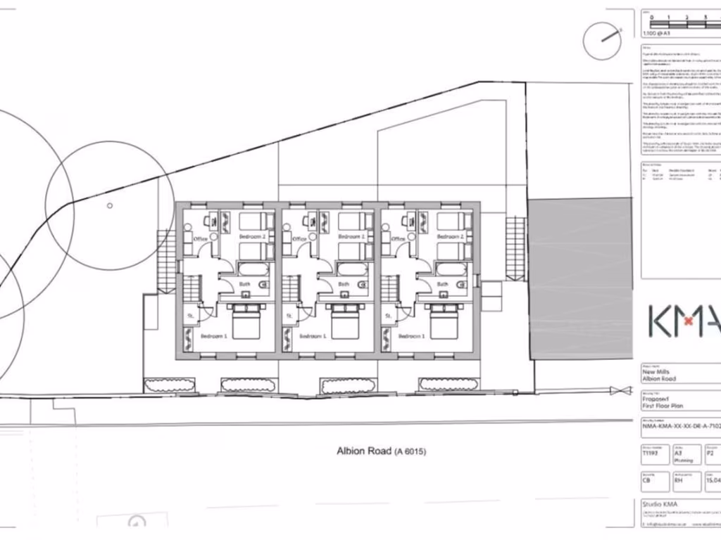
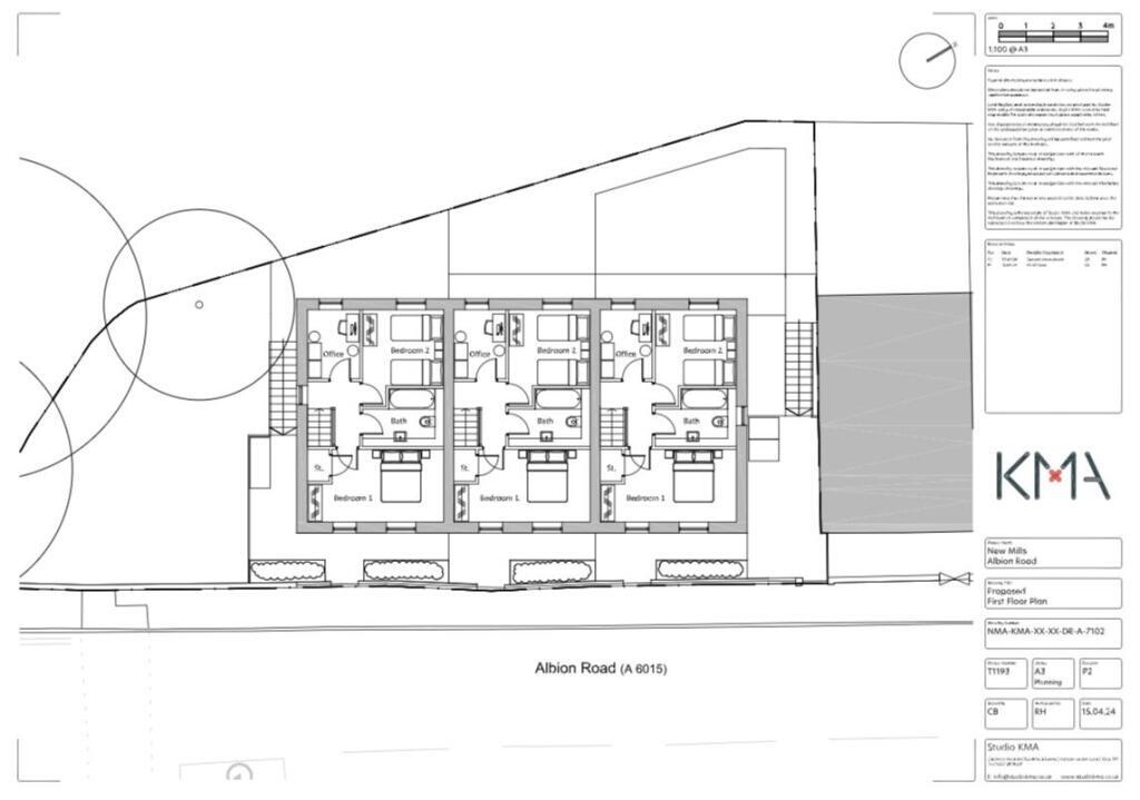
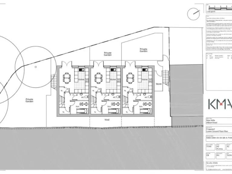
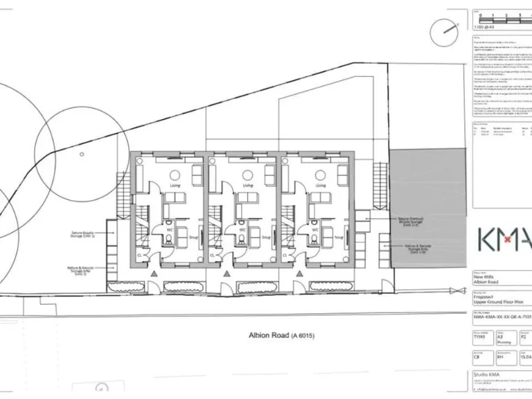
- Full planning permission for three three-bedroom townhouses (HPK/2024/0194)
- Plot approx. 395 sq m (0.1 acre); dwellings ~1,200+ sq ft each
- Private gardens and off-street parking accessed from Albion Road
- Leasehold: 999 years (less 10 days) from 24 June 1862
- Sold at auction; 10% deposit and buyers’ fee apply
- Ground rent/service charge review details in legal pack (unknown)
- Broadband speeds slow; EPC not applicable
- Partial demolition of boundary wall required for access
A rare development parcel in New Mills with full planning permission for three three-bedroom townhouses across three storeys. The approved scheme (HPK/2024/0194) delivers homes of about 1,200+ sq ft each with private gardens and off-street parking, accessed from Albion Road after partial demolition of the existing boundary wall.

This is a clear opportunity for a small developer or investor to deliver family homes in an established, affluent suburb close to schools, rail and local amenities. The plot is approximately 395 sq m (0.1 acre) and benefits from no identified flood risk and a leasehold term of 999 years (less 10 days) from 24 June 1862.

Important transactional points: the land will be sold at auction (25 Sept 2025) under an unconditional sale type, with binding contracts exchanged on the fall of the hammer. Buyers must allow for a 10% deposit, a buyers’ fee (2.4% subject to minimum), and review the Legal Pack for any additional costs such as ground rent or service charge review periods.

Practical considerations: broadband speeds are reported as slow and the EPC is not applicable. Interested purchasers should study the planning documents, consider demolition and construction costs, and factor auction fees and lease terms into their budget before bidding.

Property Details

Image Descriptions

Textual Property Features

Detected Visual Features

Nearby Schools

Nearest Bars And Restaurants

,,,,}

Nearest General Shops

,,}

Nearest Grocery shops

,,}

Nearest Supermarkets

,,}

Nearest Religious buildings

,,}

Nearest Medical buildings

,,,}

Nearest Airports

}

Nearest Leisure Facilities

,,,,}

Nearest Tourist attractions

,,}

Nearest Train stations

,,,,}

Nearest Bus stations and stops

,,,,}

Nearest Hotels

,,}

Tags

Local Market Stats

AirBnB Data

Similar Properties

Meta

High Res Images

Compatible Images

Low res Images

Thumbnails

Raw Images