Well-presented family home with garden, good links, and low running costs.
Four bedrooms with versatile layout for family or work-from-home use
Open-plan kitchen/dining with sliding doors to garden
Modern first-floor shower room; one bathroom for four bedrooms
Generous, low-maintenance rear garden with gated access
Freehold tenure and very low council tax (Council Tax A)
Fast broadband and excellent mobile signal for connectivity
No flood risk; decent plot size and secure fencing
Local area deprived; mixed Ofsted ratings and average crime levels
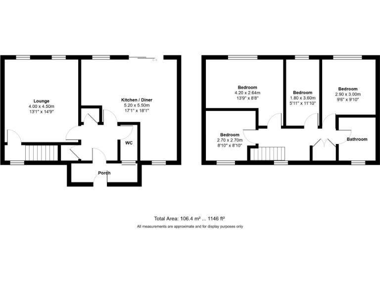
This spacious four-bedroom end-of-terrace offers flexible family living across two floors, with an open-plan kitchen/dining area that flows out to a low-maintenance garden. The principal bedroom and three further bedrooms give practical sleeping space for children, guests or a home office. A useful downstairs WC and gated rear access add everyday convenience.
The kitchen and dining room form the heart of the home, fitted with green shaker-style units, integrated oven and sliding patio doors linking indoor and outdoor space. A modern first-floor shower room is finished with full-height marble-effect tiling and a large walk-in shower, giving a fresh, contemporary feel. Fast broadband and excellent mobile signal support home working and entertainment.
Practical positives include freehold tenure, very low council tax band, no flood risk and decent plot size with a secure, private garden. The property sits close to schools, shops and good transport links, making it straightforward for school runs and commuting.
Buyers should note the local area scores as deprived with average crime levels; nearby schools have mixed Ofsted outcomes (several rated Good but at least one Requires Improvement and one Inadequate). The house provides one bathroom for four bedrooms, which may be a consideration for larger families or those seeking more ensuite/bathroom space. Overall this is a versatile family home or investment with modern interiors and further potential to add value.
4 bedroom terraced house for sale in Beechtrees,Skelmersdale,WN8 9EY, WN8 — £115,000 • 4 bed • 2 bath • 874 ft²
3 bedroom end of terrace house for sale in Ferndale, Skelmersdale, Lancashire, WN8 — £110,000 • 3 bed • 1 bath • 949 ft²
3 bedroom terraced house for sale in Lowcroft, Skelmersdale, Lancashire, WN8 — £149,995 • 3 bed • 1 bath • 1768 ft²
4 bedroom detached house for sale in Edenhurst, Skelmersdale, Lancashire, WN8 — £290,000 • 4 bed • 2 bath • 1206 ft²
4 bedroom end of terrace house for sale in Hawksclough, Skelmersdale, Lancashire, WN8 — £125,000 • 4 bed • 1 bath • 1053 ft²
4 bedroom semi-detached house for sale in Ormskirk Road, Skelmersdale, Lancashire, WN8 — £189,995 • 4 bed • 1 bath • 1012 ft²














































































