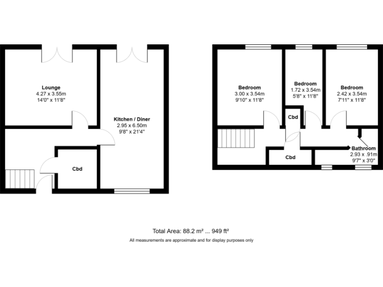
**Standout Features:**
- Spacious three-bedroom end-terraced home
- Generous lounge with garden access
- Open plan kitchen and dining area
- Modern family bathroom
- Large, low-maintenance rear garden
- Ideal for families, first-time buyers, or investors
- Chain free with excellent transport links
- Close to several local schools and amenities
- Council Tax A with very cheap rates
This charming end-terraced property in Skelmersdale offers a blend of comfort and space, making it an ideal choice for families, first-time buyers, or savvy investors. With an inviting lounge that opens directly to a generous garden, and a flexible open plan kitchen and dining area, this home is designed for both entertaining and family living. Upstairs, you'll find three well-proportioned bedrooms and a modern bathroom, providing ample room for growth and functionality.
Situated close to local schools rated good by Ofsted and essential amenities, this home is perfectly positioned for convenience. The spacious garden is a low-maintenance sanctuary, ideal for children’s play or summer gatherings. Although the area has a higher crime rate and is characterized as very deprived, its potential for rental appeal and affordability cannot be overlooked. With a price point of £110,000, this property is a fantastic opportunity that is sure to attract interest. Don't miss out on securing your future here – viewings are available upon request!
4 bedroom end of terrace house for sale in Eskbank, Skelmersdale, Lancashire, WN8 — £130,000 • 4 bed • 1 bath • 1146 ft²
3 bedroom terraced house for sale in Alderley, Skelmersdale, Lancashire, WN8 — £90,000 • 3 bed • 1 bath • 962 ft²
3 bedroom end of terrace house for sale in Yewdale, Skelmersdale, Lancashire, WN8 — £140,000 • 3 bed • 1 bath • 978 ft²
3 bedroom end of terrace house for sale in Inglewhite, Skelmersdale, Lancashire, WN8 — £140,000 • 3 bed • 1 bath • 848 ft²
3 bedroom terraced house for sale in Lowcroft, Skelmersdale, Lancashire, WN8 — £149,995 • 3 bed • 1 bath • 1768 ft²
4 bedroom end of terrace house for sale in Hawksclough, Skelmersdale, Lancashire, WN8 — £125,000 • 4 bed • 1 bath • 1053 ft²










































