- Four-bedroom detached house on a decent-sized plot
- Main bedroom with built-in storage and en-suite shower
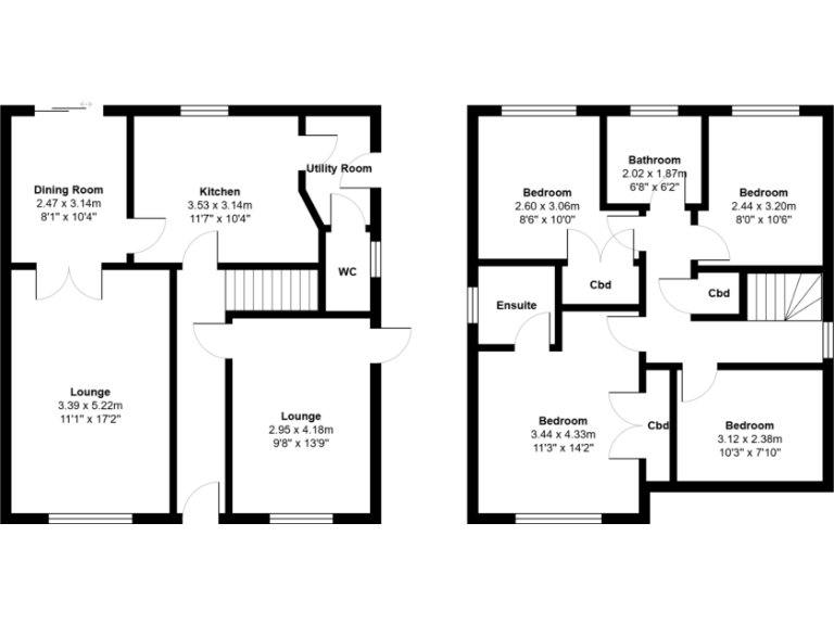
- Additional ground-floor reception room with plumbing for conversion
- Modern fitted bathroom and contemporary internal presentation
- Wide block-paved driveway with ample off-street parking
- Landscaped rear garden with patio and mature borders
- Fast broadband and excellent motorway links (M58/M6)
- Area is relatively deprived; local crime levels average
A spacious four-bedroom detached home on a generous plot in Skelmersdale, offered freehold and ready for family life. The ground floor layout includes a main lounge, dining area, practical kitchen with utility and downstairs WC, plus an adaptable additional reception room with plumbing — easily used as a home office, ground-floor bedroom or potential en-suite conversion. Upstairs are four well-proportioned bedrooms, a main bedroom with built-in storage and en-suite, and a contemporary family bathroom.
The property is presented to a modern standard throughout and benefits from good kerb appeal: a wide block-paved driveway provides ample off-street parking and the landscaped rear garden mixes lawn, patio and mature borders for privacy. Fast broadband and direct road links to the M58/M6 make commuting straightforward, while nearby schools rated Good and local amenities suit everyday family needs.
Be aware of a few practical considerations: the area scores as relatively deprived and local crime levels are average, which may affect perceptions and resale dynamics. Council Tax band is moderate. Internally the home is average-sized overall (approximately 1,206 sq ft) so buyers wanting very large rooms should view to assess space. Aside from cosmetic preferences, the property is market-ready and offers flexibility for families or buyers seeking rental potential.















































































