Comfortable one-bedroom retirement apartment with garage and private outdoor space..
- Ground-floor age-restricted one-bedroom flat
- Private section of communal garden, bedroom access
- Garage in nearby block plus resident parking
- Modern walk-in shower; built-in bedroom wardrobes
- Secure entry and two internal storage cupboards
- Lease c.77 years — lenders may refuse mortgages
- Service charge high at about £4,400 per year
- Electric storage heaters; living room needs updating
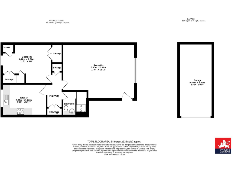
A ground-floor, age-restricted one-bedroom flat offering practical, accessible living with a private garden and garage. The layout suits a single occupant or someone downsizing who values outdoor space and step-free access; the bedroom opens directly onto the garden and there is secure communal entry.
The flat includes a modern shower room, fitted kitchen, built-in bedroom wardrobes and two internal storage cupboards. Outside, a private portion of a well-maintained communal garden provides quiet outdoor space, and a nearby garage plus resident/visitor parking adds convenience.
Important practical considerations: the lease has about 77 years remaining — lenders may refuse mortgages on this term — and the service charge is high at approximately £4,400 per year. Heating is by electric storage heaters and parts of the interior (notably the living room) will benefit from cosmetic updating.
Overall this is a compact, low-maintenance retirement-style property in a very affluent area of Guildford, with fast broadband and good local services. It will appeal to downsizers seeking garden access and a garage, or investors aware of the lease and service charge implications.
1 bedroom flat for sale in Rossiter Lodge, Rosetrees, Guildford, Surrey, GU1 — £245,000 • 1 bed • 1 bath • 596 ft²
1 bedroom apartment for sale in Cline Road, Guildford, Surrey, GU1 — £250,000 • 1 bed • 1 bath • 499 ft²
1 bedroom flat for sale in Chasefield Close, Guildford, GU4 — £220,000 • 1 bed • 1 bath • 463 ft²
1 bedroom flat for sale in Elder Close, Guildford, Surrey, GU4 — £220,000 • 1 bed • 1 bath • 473 ft²
2 bedroom flat for sale in Thornton Close, Guildford, Surrey, GU2 — £270,000 • 2 bed • 1 bath • 871 ft²
1 bedroom apartment for sale in Grange Road, Guildford, Surrey, GU2 — £220,000 • 1 bed • 1 bath • 385 ft²














































