Spacious three-bed barn conversion with huge garden and courtyard parking, near Totnes.
High-quality 2021 barn conversion with vaulted ceilings and exposed beams
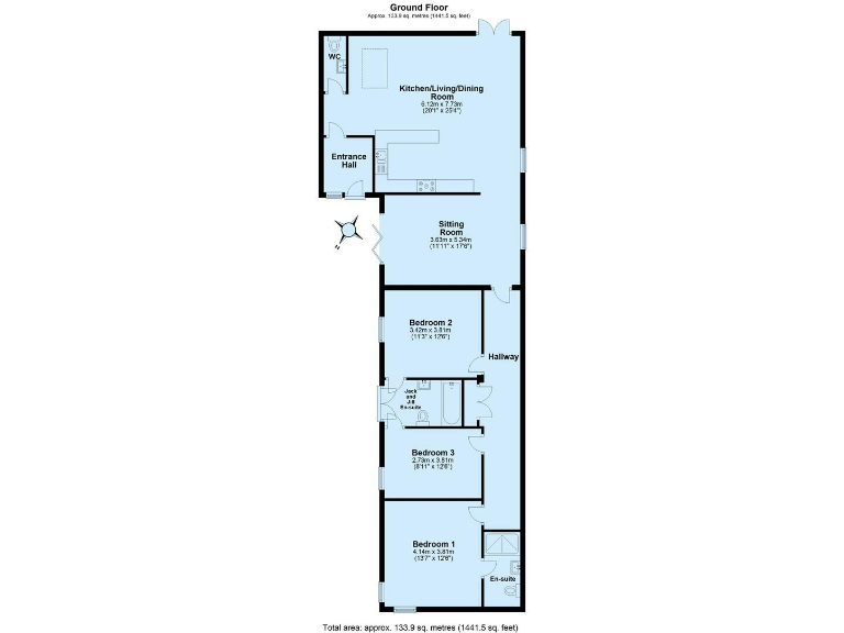
A high-quality single-storey barn conversion finished in 2021, this three-double-bedroom bungalow sits in a peaceful Littlehempston hamlet with expansive countryside views. Vaulted ceilings, exposed beams and bi-fold doors create an airy, open-plan kitchen/dining/sitting room—ideal for family living and entertaining. The property extends to about 1,442 sq ft with generous gardens and courtyard parking, and additional paddock/acreage is available separately.
Specification is strong: fitted Porcelanosa bathrooms, integrated kitchen appliances, Karndean-type flooring and thoughtful storage. The master bedroom benefits from an ensuite and the guest bedrooms share a Jack-and-Jill bathroom with underfloor heating. The setting offers very low local crime, quick access to Totnes and rail links, plus access to a community orchard.
Buyers should note material facts plainly: the site has a high flood risk, an EPC band listed as F, electric room heating and private shared drainage supplied from unit 1. Mobile signal is absent on-site and a management company will be formed for communal areas. These factors affect running costs, insurance and long-term maintenance responsibilities.
This home will suit buyers seeking a characterful rural residence with modern finishes and scope to enjoy extensive grounds. It is especially appropriate for those prepared to manage the practical implications of the location (flood mitigation, electric heating costs and shared services) and who value privacy, open space and proximity to Totnes.
4 bedroom terraced house for sale in Littlehempston, TQ9 — £699,000 • 4 bed • 4 bath • 1771 ft²
4 bedroom terraced house for sale in Littlehempston, TQ9 — £780,000 • 4 bed • 4 bath • 2036 ft²
3 bedroom barn conversion for sale in Follaton Farm Barns, Totnes, TQ9 — £525,000 • 3 bed • 2 bath • 1340 ft²
4 bedroom barn conversion for sale in Marldon, Westerland, TQ3 — £695,000 • 4 bed • 4 bath • 1986 ft²
3 bedroom barn conversion for sale in Barton Leys, Totnes, TQ9 — £575,000 • 3 bed • 3 bath • 1398 ft²
2 bedroom terraced house for sale in Higher Compton Barton, Marldon, Paignton, TQ3 — £400,000 • 2 bed • 1 bath • 922 ft²


















































































