Contemporary split-level house with private courtyard, ready to move into.
Chain-free, share of freehold; lease c.994 years
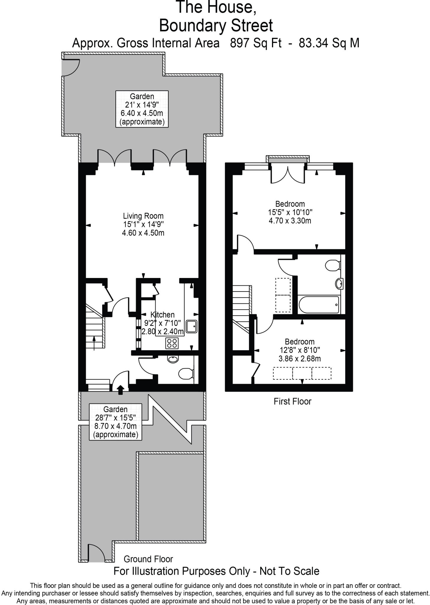
Tucked off Shoreditch High Street, this split-level house offers a bright, newly renovated interior across just under 900 sqft. The open-plan living and dining area features full-height folding doors that extend living space into a private courtyard — a low-maintenance outdoor room rare for central locations.
Practical details strengthen the offer: chain-free sale, share of freehold with an extremely long lease (c.994 years), mains gas heating with boiler and radiators, fast broadband and excellent mobile signal. Two double bedrooms and two bathrooms suit a small family or city professionals wanting outside space without compromise.
Buyers should note material negatives plainly: the neighbourhood records very high crime levels and the wider area is classified as deprived, which may influence insurance, security costs and family considerations. Average service charge is £2,698 and council tax is moderate. The property was built 1996–2002 and has double glazing of unknown installation date.
Overall, this is a compact, contemporary home that trades a private, quiet setting for proximity to Shoreditch’s cultural and transport links. It will particularly appeal to first-time buyers seeking a move-in-ready city base with rental potential, but buyers sensitive to local crime statistics or long-term area deprivation should factor those issues into their decision.
3 bedroom terraced house for sale in Boundary Street, London, E2 — £1,000,000 • 3 bed • 2 bath • 1369 ft²
3 bedroom house for sale in Boundary Street, London, E2 — £1,000,000 • 3 bed • 2 bath • 1342 ft²
2 bedroom terraced house for sale in Motley Avenue, Shoreditch, EC2A — £1,350,000 • 2 bed • 2 bath • 1292 ft²
3 bedroom flat for sale in Boundary Street, Shoreditch, E2 — £750,000 • 3 bed • 1 bath • 777 ft²
2 bedroom flat for sale in Sylvester Path, Hackney, London, E8 — £600,000 • 2 bed • 1 bath • 666 ft²
2 bedroom flat for sale in Giles Court, Tabernacle Gardens, London, E2 — £690,000 • 2 bed • 1 bath • 835 ft²


































































































