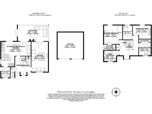
Large four-bedroom detached home with double garage and private garden.
Four double bedrooms with fitted wardrobes and ensuite to master
Approx 1,868 sq ft of living space across multiple reception rooms
Double garage plus driveway parking for up to four vehicles
Private rear garden and orangery with log-burning stove
Leasehold: 975 years remaining, ground rent £100 per year
Council tax banding noted as expensive; EPC awaiting assessment
Built circa 1996–2002 in Victorian Revival style; double glazing
Average broadband speeds; excellent mobile signal
Set in a peaceful cul-de-sac in Appley Bridge, this four-bedroom detached home offers spacious family living across approximately 1,868 sq ft. The layout includes a large lounge, orangery with log-burning stove, open-plan kitchen/dining/family area, utility room and a useful downstairs WC — all arranged for everyday family life and entertaining. The mature front garden, private rear lawn and sizable driveway leading to a double garage add outdoor space and practical parking for up to four vehicles.
Upstairs there are four bedrooms with fitted wardrobes, a generous master with contemporary en-suite and a family bathroom with a four-piece suite. Built in the late 1990s/early 2000s in a Victorian Revival style, the house benefits from double glazing, mains gas heating via boiler and radiators, filled cavity walls and an overall well-presented interior that will suit families seeking move-in-ready accommodation with scope to personalise.
Practical notes: the property is leasehold with a long remainder (975 years) and a small ground rent of £100; council tax is described as expensive. EPC rating is currently awaited. Broadband speeds are average and mobile signal is excellent. The double garage offers storage or conversion potential subject to consents.
Location is a strong selling point: canal-side walks on the doorstep, easy access to Wigan and Chorley, a nearby train station and the M6 for commuting. Several well-rated primary and secondary schools are within easy reach, and local amenities include pubs, a playground and leisure facilities. Overall this is a roomy, family-oriented home in a very affluent, low-crime area that rewards viewing.
4 bedroom detached house for sale in Herons Wharf, Appley Bridge, Wigan, WN6 — £390,000 • 4 bed • 3 bath • 1164 ft²
5 bedroom detached house for sale in Farrier Way, Appley Bridge, Wigan, WN6 — £500,000 • 5 bed • 3 bath • 3051 ft²
4 bedroom detached house for sale in Dawber Delph, Appley Bridge, WN6 9LN, WN6 — £675,000 • 4 bed • 2 bath • 2222 ft²
4 bedroom semi-detached house for sale in Vale Close, Appley Bridge, WN6 9LB, WN6 — £349,995 • 4 bed • 2 bath • 1513 ft²
4 bedroom semi-detached house for sale in Appley Lane North, Appley Bridge, Wigan, WN6 — £450,000 • 4 bed • 2 bath • 1245 ft²
3 bedroom semi-detached house for sale in Glen Drive, Appley Bridge, WN6 — £300,000 • 3 bed • 3 bath • 993 ft²






















































































































































