Private plot and adaptable layout near Wells city centre, chain free.
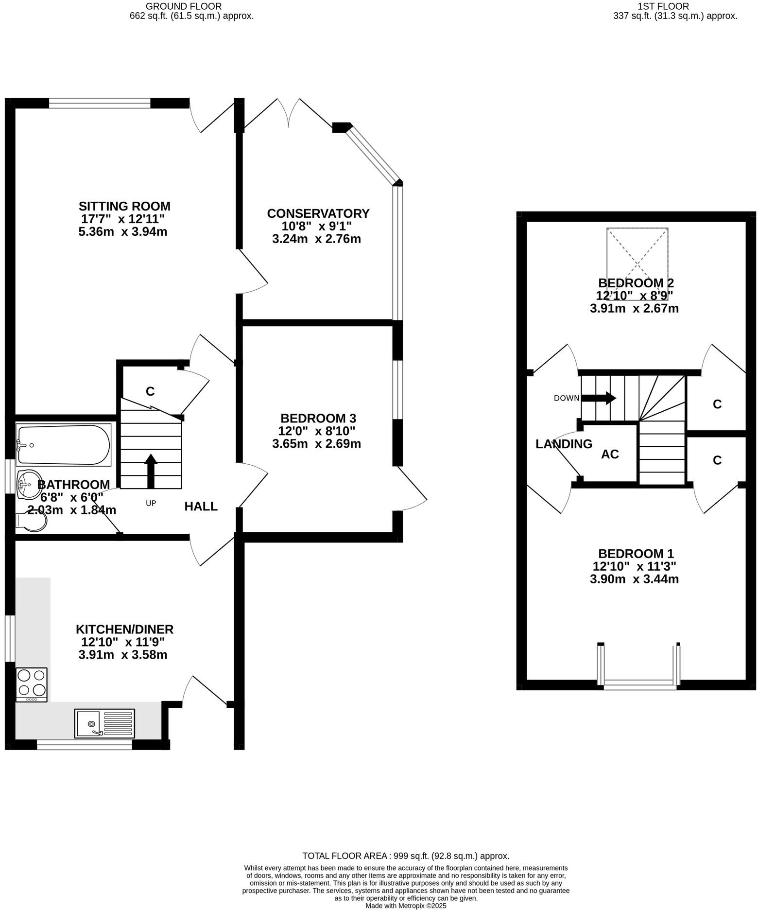
3 bedrooms with ground-floor bedroom allowing single-level living
Generous double-aspect kitchen-diner; space for appliances and plumbing
Large private south-west rear garden c.40' (12m) with shed and greenhouse
Conservatory and sitting room with garden access
Two allocated off-street parking spaces adjacent to property
Dated kitchen and bathroom — requires modernisation to add value
Electric heating (higher running costs) and double glazing
Higher local crime rate — buyers should consider safety measures
This detached three-bedroom house on Walnut Tree Close offers practical family living with scope to personalise. The sitting room, conservatory and generous double-aspect kitchen-diner create flexible reception space, while one bedroom on the ground floor enables single-level living if required. The property is chain free and includes two allocated parking spaces adjacent to the house.
The rear garden is a standout feature: approximately 40' (12m) in length, south-west facing and unusually private for the development, with a shed and greenhouse. Interiors are serviceable but dated in parts — the kitchen and bathroom reflect mid-to-late 20th century fittings and would benefit from modernisation to unlock greater value and comfort. Heating is electric and the house has double glazing.
Practical considerations are clear: there is a single bathroom with an electric shower over the bath, and the property is heated electrically, which can mean higher running costs compared with gas. The area data shows higher local crime levels, which prospective buyers should factor into their decision. For buyers seeking a low-maintenance, chain-free home close to Wells city centre, this house offers a private plot and the chance to update to modern standards.
Location is convenient for Wells’ amenities, schools and commuter routes to Bristol and Bath. The plot size and ground-floor layout will suit families needing outdoor space and adaptable accommodation, while renovators will see scope to improve energy efficiency and aesthetics to add value.
3 bedroom semi-detached house for sale in Bishopslea Close, Wells, BA5 — £285,000 • 3 bed • 1 bath • 680 ft²
3 bedroom terraced house for sale in Westfield Road, Wells, BA5 — £325,000 • 3 bed • 2 bath • 969 ft²
2 bedroom semi-detached bungalow for sale in Lethbridge Road, Wells, Somerset, BA5 — £255,000 • 2 bed • 1 bath • 407 ft²
2 bedroom bungalow for sale in Bath Road, Wells, BA5 — £375,000 • 2 bed • 1 bath • 922 ft²
3 bedroom semi-detached house for sale in Welsford Avenue, Wells, BA5 — £380,000 • 3 bed • 1 bath • 948 ft²
3 bedroom terraced house for sale in Balch Road, Wells, BA5 — £275,000 • 3 bed • 1 bath • 904 ft²






















































