Chain-free family home with large garden and strong refurbishment potential.
- Three good-sized bedrooms suitable for family living
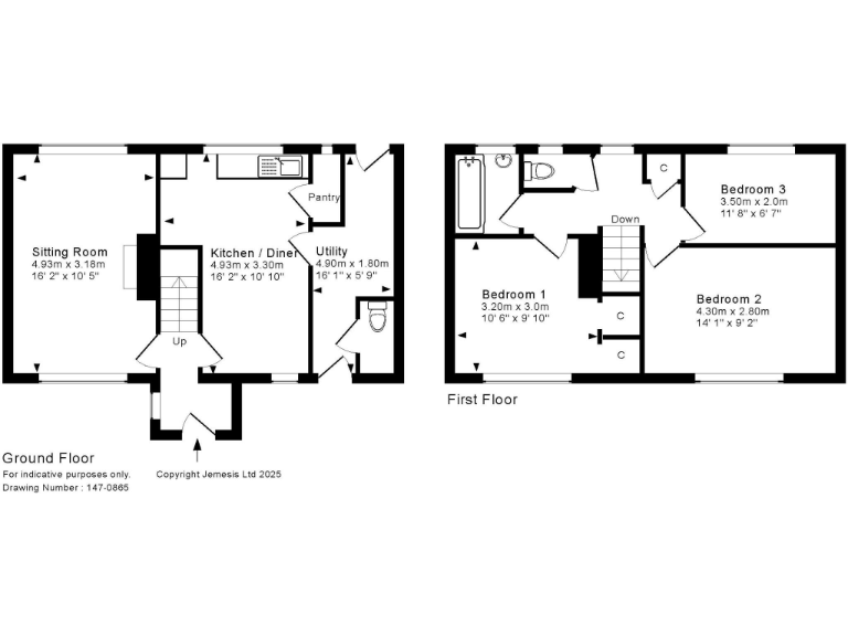
- Double-aspect sitting room with wood-burning stove inset
- Kitchen-diner with pantry and useful under-stairs storage
- 40' rear garden with greenhouse and powered shed
- Driveway parking for two cars to the front
- Requires renovation and updating throughout
- One bathroom plus separate ground-floor WC and separate first-floor WC
- Local area records higher-than-average crime rates
A three-bedroom mid-terraced house offering practical family living and clear potential to modernise. The double-aspect kitchen-diner with pantry and a sitting room with a feature fireplace and inset wood-burning stove create comfortable day spaces, while three generous bedrooms suit growing families.
Outside there is off-street parking for two cars to the front and a long c.40' rear garden with greenhouse and powered shed — useful for storage, children’s play or extension subject to planning. Gas central heating and double glazing are already fitted.
The property requires renovation and updating throughout, so buyers should budget for cosmetic and possible system improvements. There is one main bathroom plus a separate WC which meets current needs but may suit upgrading.
Located close to well-regarded primary and secondary schools and local shops in Wells, this house is chain free and freehold. Commuting options include nearby mainline stations and road links to Bath and Bristol, making it practical for family life with scope to add value through refurbishment.
3 bedroom semi-detached house for sale in Bishopslea Close, Wells, BA5 — £285,000 • 3 bed • 1 bath • 680 ft²
3 bedroom terraced house for sale in Westfield Road, Wells, BA5 — £325,000 • 3 bed • 2 bath • 969 ft²
4 bedroom end of terrace house for sale in Balch Road, Wells, BA5 — £315,000 • 4 bed • 2 bath • 1046 ft²
2 bedroom house for sale in North Road, Wells, BA5 — £270,000 • 2 bed • 1 bath • 742 ft²
3 bedroom terraced house for sale in Wolsey Close, Wells, BA5 — £295,000 • 3 bed • 1 bath • 947 ft²
3 bedroom terraced house for sale in Parsons Way, Wells, Somerset, BA5 — £290,000 • 3 bed • 1 bath • 1020 ft²






















































































