Chain-free three-bed home with parking and level garden, ideal for downsizers.
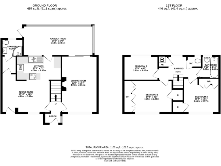
3 generous bedrooms with two bathrooms plus separate WC
Ground-floor shower room and fitted stairlift for single-floor living
Spacious dining kitchen and large conservatory overlooking the garden
Off-street parking for two cars; tarmac driveway at front
Secure, level rear garden with greenhouse and shed (small plot)
Offered chain free for a quicker purchase process
EPC rating D — opportunity/need to improve energy efficiency
Located in a more deprived area; average local crime and amenities
This mid-20th-century terraced house on Westfield Road offers practical, flexible living in the heart of Wells. The ground floor layout includes a double-aspect sitting room with a feature gas fire, a spacious dining kitchen and a large conservatory with utility space, creating bright family living and an option for single-floor living thanks to the fitted stairlift and ground-floor shower room.
Outside, the property benefits from off-street parking for two cars to the front and a secure, level rear garden with greenhouse and shed — low-maintenance outdoor space suited to small families or downsizers. The home is offered chain free and sits close to Wells city centre amenities, schools and transport links to Bath and Bristol.
Practical considerations are clear: the property is average-sized with a D EPC rating and sits in an area described as having higher levels of deprivation. The front garden is small and the plot compact, so buyers wanting larger grounds should note the limited outside space. Overall this is a sensible, adaptable home with scope for cosmetic updating to improve energy performance and personalise the interior.
3 bedroom semi-detached house for sale in Balch Road, Wells, Somerset, BA5 — £325,000 • 3 bed • 2 bath • 1056 ft²
3 bedroom terraced house for sale in Portway, Wells, Somerset, BA5 — £365,000 • 3 bed • 1 bath • 1420 ft²
3 bedroom terraced house for sale in Morgans Yard, Southover, Wells, Somerset, BA5 — £375,000 • 3 bed • 1 bath • 773 ft²
3 bedroom terraced house for sale in Wolsey Close, Wells, BA5 — £295,000 • 3 bed • 1 bath • 947 ft²
2 bedroom terraced house for sale in St Andrews Walk, Wells, BA5 — £265,000 • 2 bed • 1 bath • 722 ft²
4 bedroom terraced house for sale in St Andrews Mews, Wells, BA5 — £335,000 • 4 bed • 3 bath • 1313 ft²


































































































