HMO licence and strong rental income potential close to transport links.
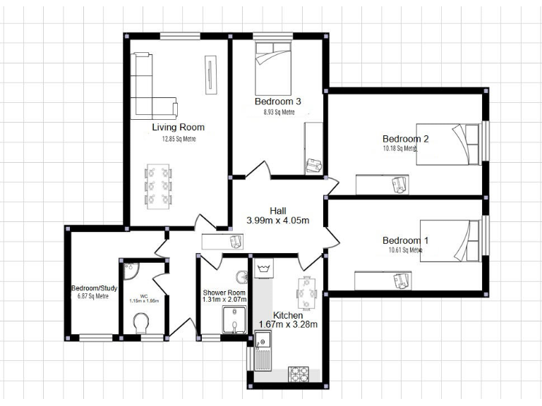
Approximately 777 sq ft, flexible 3-bed layout convertible to four bedrooms
Set on Homerton Road, this well-proportioned flat offers flexible living across approximately 77 m² (777 sq ft) with a layout that works as three bedrooms plus a study or four bedrooms for sharers. Large double-glazed windows and gas central heating provide day-to-day comfort, while the HMO licence and estimated rent of £3,200 pcm underline clear investment potential.
The building dates from the 1930s and retains period character, but communal exterior and some internal finishes show evidence of wear; the kitchen is serviceable but would benefit from modernization. There is a single shower room plus a separate WC, which is practical for sharers but may feel limiting for families wanting en suite facilities.
Location is a major strength: quick walks to Homerton and Hackney Wick Overground, easy links to Stratford International, and close proximity to award‑winning schools including Kingsmead Primary and Mossbourne Victoria Park Academy. Note practicalities: the property is leasehold (110 years remaining), an average service charge of about £1,380, and the local area scores as very deprived with crime above average — factors to consider for owner-occupiers and tenants alike.
Overall this flat suits buy-to-let investors seeking immediate HMO income or buyers wanting adaptable living near transport, parks and strong schools. It offers scope to add value through targeted cosmetic updating and slight reconfiguration.
3 bedroom flat for sale in Homerton Road, Homerton, E9 — £400,000 • 3 bed • 1 bath • 668 ft²
3 bedroom apartment for sale in Edred House, London, E9 5PN, E9 — £395,000 • 3 bed • 1 bath
3 bedroom flat for sale in Emerald Apartments, Homerton Road, London, E9 — £415,000 • 3 bed • 2 bath • 857 ft²
2 bedroom flat for sale in Homerton High Street, London, E9 — £400,000 • 2 bed • 1 bath • 732 ft²
3 bedroom flat for sale in Vanbrugh House, Loddiges Road, London, E9 — £525,000 • 3 bed • 1 bath • 775 ft²
2 bedroom flat for sale in Homerton Road, LONDON E9 — £375,000 • 2 bed • 2 bath • 749 ft²






































































