Huge light-filled duplex with iconic dock views and direct Crossrail access.
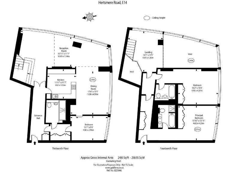
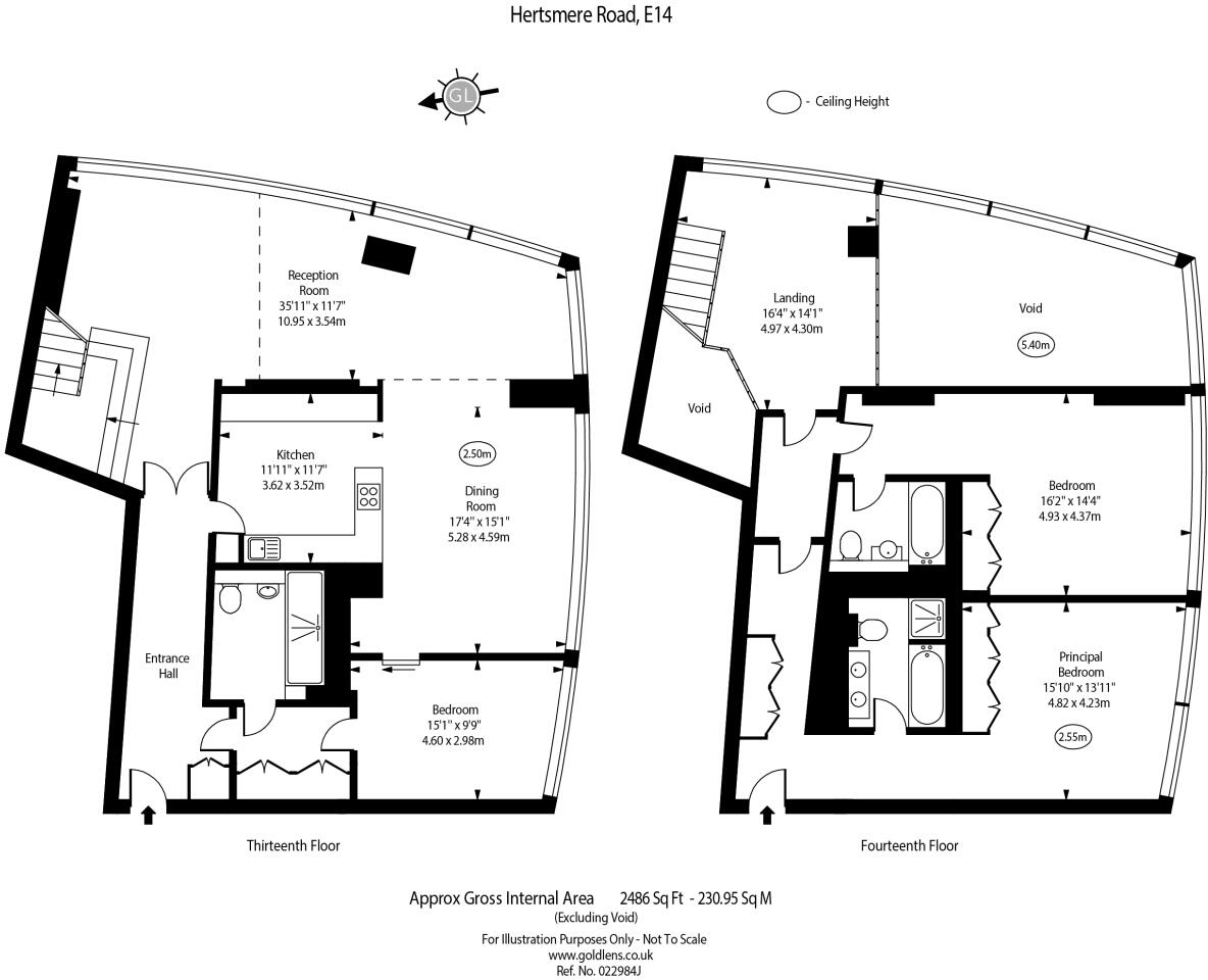
Exceptionally large 2,486 sq ft duplex with dramatic double-height reception
Panoramic East and South Canary Wharf and dock views
Two principal bedrooms with en suites; mezzanine for gym/office/reading
Floor-to-ceiling glazing, hardwood reception floors, comfort cooling installed
Secure underground parking space included; chain-free sale
24-hour concierge and A2-rated EWS1 form in place
Very high annual service charge (£29,760) and high council tax
Local crime level recorded as very high; consider security concerns
A rare, very large duplex apartment spanning 2,486 sq ft across the 13th and 14th floors, offering commanding Canary Wharf and dock views. The double-height reception, floor-to-ceiling glazing and a mezzanine create dramatic living space, flooded with natural light and flexible for living, working or leisure.
The kitchen is fully fitted with ample worktops, integrated appliances and a built-in Miele coffee machine. Two principal bedrooms sit upstairs with en suites and dock views, while a third bedroom/office is adjacent to the dining area. Comfort cooling with individual controls, hardwood floors in reception and a secure underground parking space add practical convenience.
No1 West India Quay delivers location benefits few can match: 50m from West India Quay DLR, moments from Canary Wharf Elizabeth Line, shops, bars and leisure. The development includes 24-hour concierge and an A2-rated EWS1 form. The property is offered chain-free with a long lease (977 years).
Buyers should weigh the outstanding positives against notable running costs and local conditions. The service charge of £29,760 p.a. and ground rent (£700 p.a.) are high; council tax is described as very expensive. The recorded local crime level is very high, which may concern some purchasers despite concierge security. Overall, this is a high-spec, large Canary Wharf apartment best suited to buyers seeking space, views and transport links, who can accommodate significant ongoing service costs.
2 bedroom flat for sale in Hertsmere Road,
Canary Wharf, E14 — £600,000 • 2 bed • 2 bath • 1341 ft²
2 bedroom flat for sale in Hertsmere Road,
Canary Wharf, E14 — £600,000 • 2 bed • 2 bath • 1119 ft²
2 bedroom flat for sale in West India Quay,
26 Hertsmere Road, E14 — £700,000 • 2 bed • 2 bath • 1356 ft²
2 bedroom flat for sale in One West India Quay, Canary Wharf, E14 — £630,000 • 2 bed • 2 bath • 955 ft²
2 bedroom apartment for sale in West India Quay, Hertsmere Road, London, E14 — £599,995 • 2 bed • 2 bath • 1076 ft²
1 bedroom apartment for sale in West India Quay, 26 Hertsmere Road, London, E14 — £425,000 • 1 bed • 1 bath • 603 ft²


























































