Ideal for first-time buyers or landlords seeking solid rental yield and easy commuting.
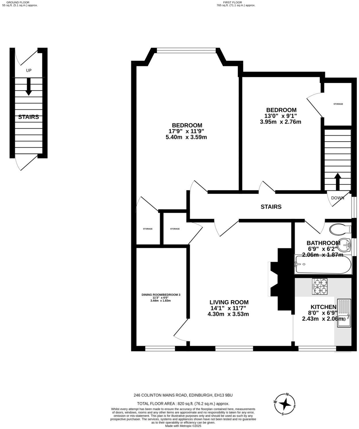
Private main door upper villa layout
Set on Colinton Mains Road, this bright three-bedroom upper villa is accessed via a private main door and offers flexible accommodation over one floor. The layout includes a generous sitting room, a separate dining room that can double as a third bedroom or home office, two well-proportioned double bedrooms, a fitted kitchen and a modern bathroom. The property benefits from gas central heating, double glazing and a private garden plus a shared drying green.
Practical positives include freehold tenure, ample unrestricted on-street parking, excellent mobile signal and very fast broadband potential (up to 1800 Mbps). The location suits commuters with frequent bus services to the city centre, easy road links to the bypass and local amenities including supermarkets, shops and recreational green spaces nearby.
Buyers should note the property is sold as seen with no warranties provided and sits in an area flagged as relatively deprived. The flat is average-sized (around 820 sq ft) with a single bathroom and would benefit from cosmetic modernisation in places to unlock full value. EPC rating D and council tax band D apply. This home will suit first-time buyers seeking a move-in-with-improvements project, families wanting private outdoor space, or investors targeting steady rental demand in south-west Edinburgh.
3 bedroom flat for sale in 62 Colinton Mains Crescent, Edinburgh, EH13 9DF, EH13 — £230,000 • 3 bed • 1 bath • 969 ft²
3 bedroom flat for sale in 10 Oxgangs Terrace, Edinburgh, EH13 9BY, EH13 — £220,000 • 3 bed • 2 bath • 1074 ft²
3 bedroom flat for sale in Colinton Mains Road, Edinburgh, EH13 — £250,000 • 3 bed • 1 bath • 539 ft²
2 bedroom flat for sale in 34 Colinton Mains Terrace, Edinburgh, EH13 9AS, EH13 — £185,000 • 2 bed • 1 bath • 646 ft²
2 bedroom villa for sale in Colinton Mains Road, Edinburgh, EH13 — £185,000 • 2 bed • 1 bath • 635 ft²
2 bedroom flat for sale in 277 Colinton Mains Drive, Colinton Mains, Edinburgh, EH13 9AY, EH13 — £195,000 • 2 bed • 1 bath • 678 ft²


























































