Spacious rural home with annexe and stables, ideal for equestrian families.
- Circa 1890 detached former farmhouse on c.2.1 acres
- Self-contained one‑bedroom annex ideal for guests or rental
- Four reception rooms including large dining kitchen with Aga
- Timber stable block, four stables, tack room and paddocks
- Enclosed west‑facing garden with deck and summerhouse
- Broadband very slow; consider satellite/other solutions
- Property served by septic tank; buyers should verify maintenance
- Local crime reported high; council tax band is expensive
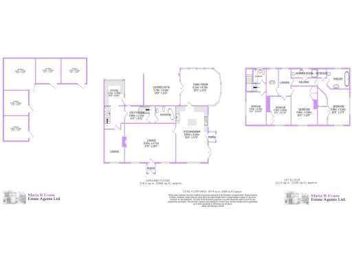
A substantial detached former farmhouse set in about 2.1 acres, offering generous living space and clear potential for multi‑generational use. The main house features three reception rooms, a large dual‑aspect dining kitchen with Aga and island, utility/laundry room and a well‑appointed master suite with dressing room and en suite. An attached, self‑contained one‑bedroom annex provides independent accommodation ideal for guests, older relatives or rental income.
The grounds are a major asset: lengthy cobbled driveway, extensive parking, formal lawns, enclosed west‑facing rear garden with deck, summerhouse and mature specimen trees. Outbuildings include a timber stable block with four stables, tack room, sand paddock and approximately 1.5 acres of grazing, suiting equestrian or small‑holding use. Vendor notes indicate potential development of the stable block/yard subject to planning permission.
Practical points to note: the property uses a septic tank, council tax is in a high band and broadband speeds are very slow — important for those needing reliable high‑speed internet. Crime levels are reported as high in the area. The house is attractively presented but, given age (circa 1890) and scale, ongoing maintenance and periodic updating should be expected. Buyers should verify services, appliance condition and any planning intentions for outbuildings.
This home will suit families seeking space, privacy and equestrian facilities, or buyers looking for a character property with ancillary income potential. It offers immediate comfortable living alongside opportunities for adaptation or enhancement, subject to the usual consents.
3 bedroom detached house for sale in Greenacres, Dawbers Lane, Euxton PR7 6EF, PR7 — £800,000 • 3 bed • 2 bath • 1871 ft²
4 bedroom detached house for sale in Long Heys Lane, Dalton, WN8 7RS, WN8 — £900,000 • 4 bed • 3 bath • 2394 ft²
4 bedroom barn conversion for sale in Greystone Barn, Hall Lane, Bispham WN8 7BD, WN8 — £795,000 • 4 bed • 2 bath • 2498 ft²
5 bedroom detached house for sale in Elmridge Lane, Chipping, Preston, Lancashire, PR3 — £1,250,000 • 5 bed • 3 bath • 4654 ft²
5 bedroom farm house for sale in Trigg Lane, Heapey, PR6 — £1,250,000 • 5 bed • 3 bath • 2781 ft²
3 bedroom house for sale in Weavers Fold Farm, Weavers Folds Bretherton PR26 9AP, PR26 — £450,000 • 3 bed • 1 bath • 1340 ft²


























































































































































