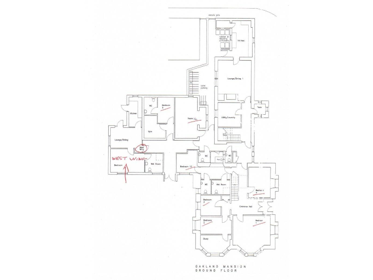
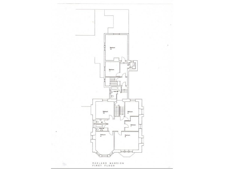
Established 14‑room HMO with separate bungalow, strong income and clear redevelopment potential.
14 tenanted rooms plus separate 1-bed detached bungalow generating strong income
A high-yield, freehold investment in Plymouth offering immediate cashflow and clear upside. The Victorian detached house contains 14 tenanted rooms plus a separate detached one‑bed bungalow, delivering a current annual income of £83,112 (10.31% yield), rising to £88,608 (11% yield) when the advertised room is let. Tenants are established working professionals or semi‑retired individuals, providing stable rental income and low turnover.
The site includes a private driveway with off‑street parking, a very large garden and additional parking spaces—assets that improve tenant appeal and give scope for modest reconfiguration. The bungalow has its own entrance and courtyard and has been continuously let since 2017; there is scope to submit a retrospective planning application to register it formally as a separate dwelling (application not submitted or confirmed).
Value-add opportunities are tangible: reconfiguring rooms to include en‑suite facilities, converting to self‑contained flats, or pursuing a redevelopment scheme for higher density residential use. Several tenancy agreements are due for review, creating a straightforward route to increase revenue. Mobile and broadband connectivity are excellent and the surrounding area is affluent with low crime, supporting ongoing rental demand.
Material considerations are set out plainly. The property will need modernisation in places (external render/paintwork shown as peeling in areas) and any conversion or redevelopment will require planning consent. Council tax is described as quite expensive, which affects running costs for any future owner-occupier or management strategy. Prospective buyers should allow budget and time for renovation work and for pursuing any retrospective planning application.
15 bedroom end of terrace house for sale in Apsley Road, Mutley, PL4 — £900,000 • 15 bed • 15 bath • 5641 ft²
6 bedroom terraced house for sale in Lisson Grove, Mutley, PL4 — £300,000 • 6 bed • 2 bath • 3057 ft²
5 bedroom terraced house for sale in Tothill Road, Cattedown, Plymouth. 5 bed FULLY LET investment property., PL4 — £245,000 • 5 bed • 2 bath • 1561 ft²
6 bedroom end of terrace house for sale in Fore Street, Devonport, Plymouth, Devon, PL1 — £550,000 • 6 bed • 6 bath • 4609 ft²
4 bedroom terraced house for sale in Stangray Avenue, Plymouth, Devon, PL4 — £250,000 • 4 bed • 2 bath • 1148 ft²
6 bedroom terraced house for sale in Old Priory, Plymouth, Devon, PL7 — £375,000 • 6 bed • 4 bath • 1596 ft²










































































































































