PL1 4DW - 6 bedroom end of terrace house for sale in Fore Street, Dev…

View on Property Piper

6 bedroom end of terrace house for sale in Fore Street, Devonport, Plymouth, Devon, PL1

Summary - 7, Fore Street, Devonport, PLYMOUTH PL1 4DW

6 bed 6 bath End of Terrace

Prominent Victorian corner building — six flats with immediate rental income and refurbishment upside.
6 self-contained flats sold as a single freehold investment
Projected annual income c. £43,440 (circa 8% yield)
Large Victorian corner building with high ceilings and period features
Two duplexes and four one-bed apartments; tenants currently in situ
Separate stone-built garage rented at £120 pcm
Located in a very deprived area with high local crime levels
May require refurbishment and ongoing maintenance to boost rents
Fast broadband, excellent mobile signal; no flood risk
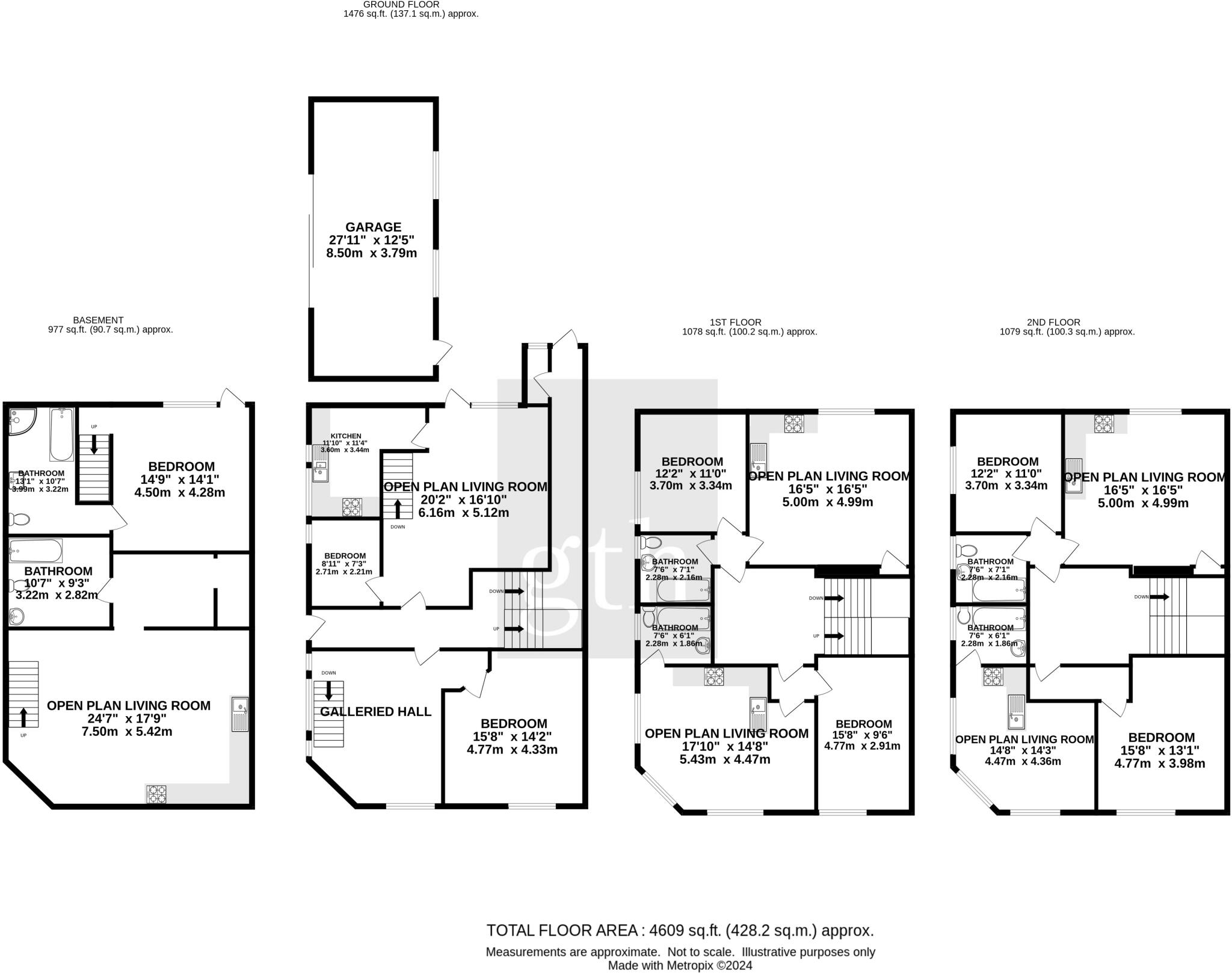
A substantial Victorian end-of-terrace converted into six self-contained flats and sold as a single freehold investment with tenants in situ. The building sits prominently on a corner plot in Devonport and offers a projected annual income of about £43,440 (circa 8% yield) including a separately rented stone-built garage. High ceilings, large rooms and period sash windows give the apartments character and potential to enhance value with sensitive refurbishment.

The six flats comprise two duplexes and four one-bed apartments, all currently occupied and producing rental income. Broadband speeds are fast and mobile signal is excellent, supporting demand from working tenants. The property benefits from close access to Plymouth city centre, public transport and local amenities, and there is no flood risk on the site.

Key investment considerations: the area records high crime levels and is classified as very deprived, which affects tenant profiles and resale prospects. The building presents renovation potential rather than turnkey luxury—ongoing maintenance and upgrading of communal areas or individual flats may be required to sustain rents and reduce void risk. The property is large (about 4,609 sq ft) with a decent plot and private rear courtyard shared by flats.

This opportunity suits a buyer seeking an income-producing, freehold, multi-unit period building with clear scope to add value through targeted improvements. Expect working with existing tenants in situ and budgeting for ongoing maintenance and possible modernisation to maximise long-term returns.

Property Details

Brochure Descriptions

Image Descriptions

Floorplan Description

Rooms

Textual Property Features

Target Audience

AI Tags

Detected Visual Features

Nearby Schools

Nearest Bars And Restaurants

,,,,}

Nearest General Shops

,,}

Nearest Grocery shops

,,}

Nearest Supermarkets

,,}

Nearest Religious buildings

,,}

Nearest Medical buildings

,,,}

Nearest Leisure Facilities

,,,,}

Nearest Tourist attractions

,,}

Nearest Train stations

,,,,}

Nearest Bus stations and stops

,,,,}

Nearest Hotels

,,}

Tags

Local Market Stats

AirBnB Data

Similar Properties

Meta

High Res Images

Compatible Images

Low res Images

Thumbnails

Raw Images

High Res Floorplan Images

Compatible Floorplan Images

Low res Floorplan Images

FloorplanImages Thumbnail

Raw Floorplan Images