**Standout Features:**
- Investment opportunity with a licensed HMO property
- Annual rental income of approximately £37,200 (approx. 9.9% yield)
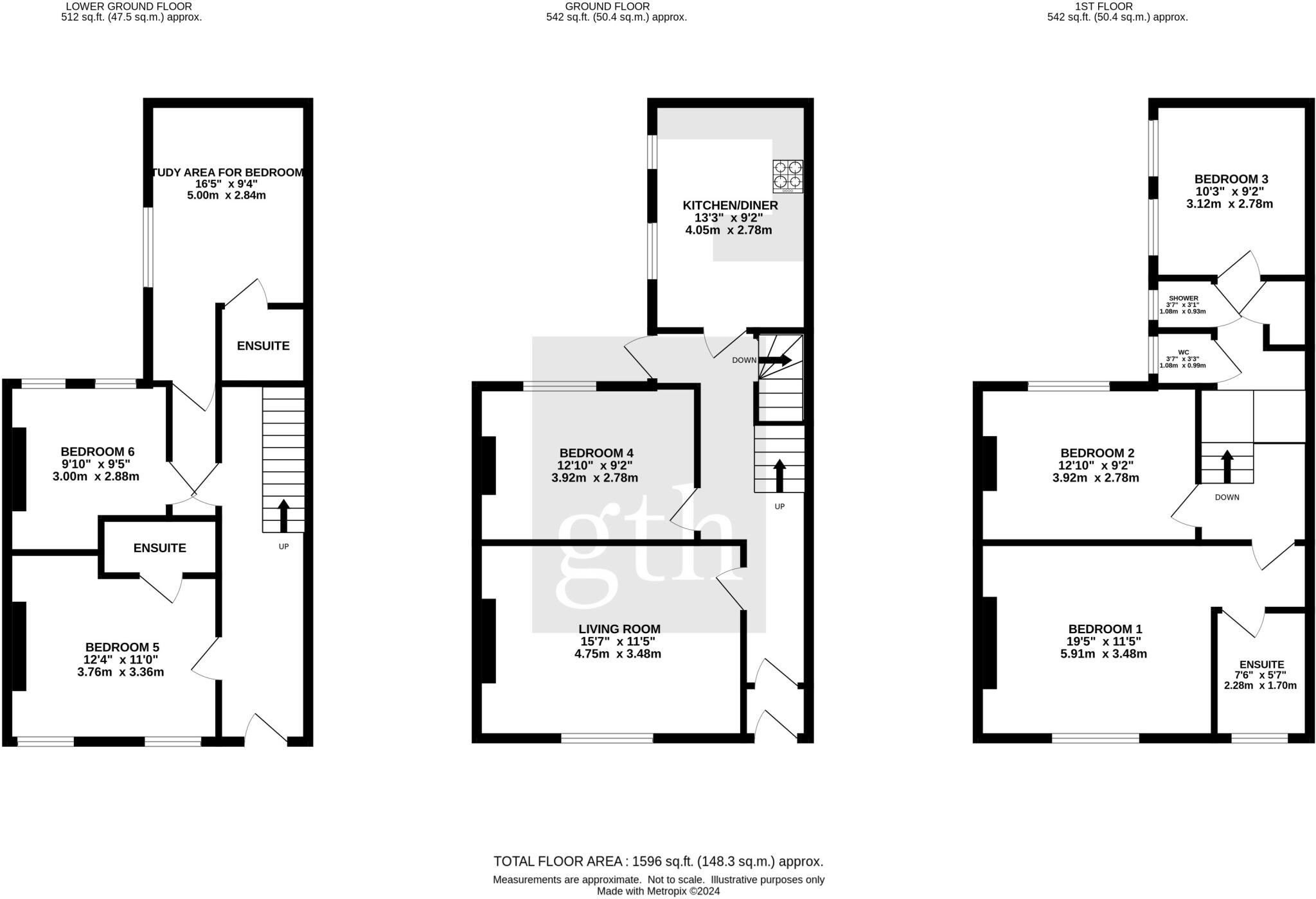
- Six fully let double bedrooms and four en-suite shower rooms
- Modern kitchen with built-in appliances
- Located in a desirable area of Plympton, with low crime rates and good local schools
- Private garden and rear courtyard
- Convenient off-street parking
**Potential Downsides:**
- Constructed before 1900; potential for modernization
- Walls lack insulation, which may affect energy efficiency
- Limited parking availability depending on local demand
This Victorian terraced property is an exceptional investment opportunity located in the highly sought-after area of Plympton. Currently generating a robust rental income of approximately £37,200 per annum, it comprises six spacious double bedrooms, each with en-suite facilities, designed to cater to modern tenants' needs. The inviting living room and streamlined kitchen are well-suited for communal living, while the appealing outdoor spaces, including a private garden and courtyard, provide a welcoming retreat for residents.
With an affordable council tax rate and excellent transport links to Plymouth City Centre and surrounding amenities, this property is perfect for savvy investors seeking stable returns in a friendly community. Although the home retains its traditional charm, potential renovations could enhance its appeal and efficiency further. Don’t miss this prime rental opportunity—properties like this don’t stay on the market long!
6 bedroom terraced house for sale in Alexandra Road, Mutley, Plymouth, Devon, PL4 — £290,000 • 6 bed • 2 bath • 1261 ft²
6 bedroom maisonette for sale in Milehouse Road, Plymouth, Devon, PL3 — £250,000 • 6 bed • 2 bath • 1678 ft²
6 bedroom house for sale in Ashford Road, Plymouth, PL4 — £290,000 • 6 bed • 2 bath • 1426 ft²
6 bedroom terraced house for sale in Beechwood Avenue, Mutley, Plymouth. Large 6 bed FULLY LET student HMO, PL4 — £337,500 • 6 bed • 2 bath • 2110 ft²
7 bedroom terraced house for sale in Wilton Street, Plymouth, Devon, PL1 5LT, PL1 — £325,000 • 7 bed • 2 bath • 1915 ft²
5 bedroom terraced house for sale in North Road West, Plymouth, PL1 — £290,000 • 5 bed • 2 bath • 1852 ft²






































