Over‑60s Lifetime Lease option, private garden and riverside mooring included.
- Partially listed mid-terrace with original period features
- Lifetime Lease option for over‑60s guide price £330,000 (market £500,000)
- Double garage en bloc plus rear off-road parking
- Private mature rear garden and riverside communal gardens with mooring
- Timber‑frame construction likely without insulation; upgrades may be required
- LPG boiler heating (not mains gas); consider running costs
- Slow broadband speed in the area
- Listed status will restrict alterations and may complicate works
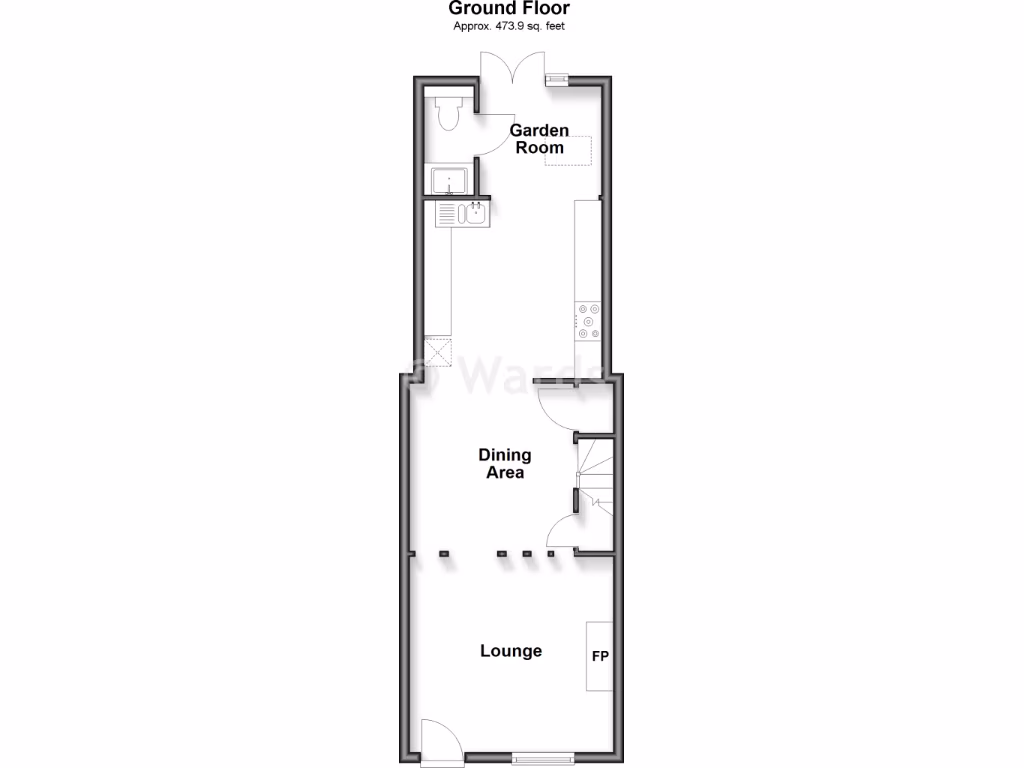
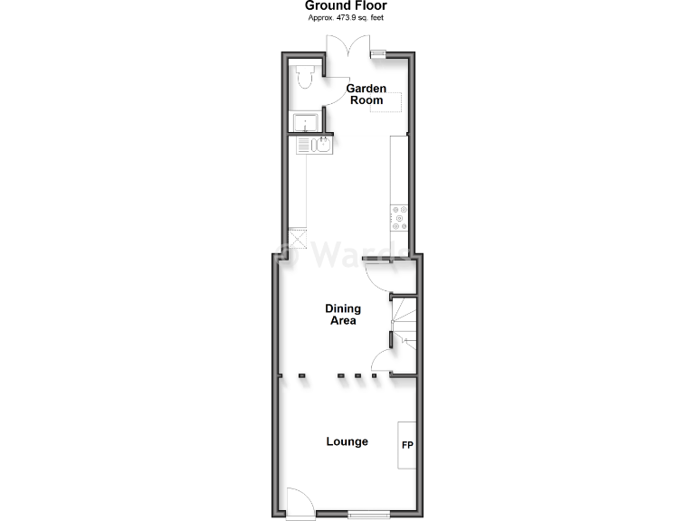
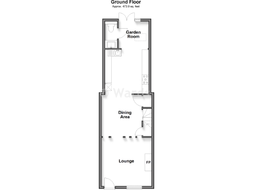
Set in a peaceful hamlet beside meandering riverbanks, this partially listed two-bedroom mid-terrace offers genuine retirement appeal and striking views. Original period detail and a compact layout create charm and comfortable living space, with a garden room and mature private rear garden for quiet outdoor enjoyment. A double garage en bloc and rear parking add practical convenience.
The Home for Life Lifetime Lease from Homewise presents a discounted purchase route for buyers aged 60+, with a guide price of £330,000 (illustrative saving around 33% against the £500,000 market value). The plan also allows buying up to a 50% share of the property to safeguard capital — exact terms depend on age and personal circumstances.
Buyers should note the property is partially listed, which will restrict alterations and may complicate maintenance. The building’s timber-frame construction is assumed to have no cavity insulation, so thermal upgrades may be needed. Heating runs from an LPG boiler and the broadband speed is slow — factors to consider for ongoing running costs and connectivity.
This cottage is offered freehold with no forward chain and includes riverside communal gardens with a mooring right — ideal for owners who value water access and rural tranquillity. Verify tenure, listed status implications and service condition with legal and specialist advisers before committing.
2 bedroom terraced house for sale in Tutsham Farm, West Farleigh, Maidstone, Kent, ME15 — £500,000 • 2 bed • 2 bath • 868 ft²
2 bedroom terraced house for sale in School Lane, West Kingsdown, Kent, TN15 — £271,000 • 2 bed • 1 bath • 625 ft²
2 bedroom terraced house for sale in Sheridan Close, Maidstone, Kent, ME14 — £178,500 • 2 bed • 1 bath • 453 ft²
2 bedroom terraced house for sale in Oliver Twist Close, Rochester, Kent, ME1 — £185,500 • 2 bed • 1 bath • 555 ft²
2 bedroom terraced house for sale in Chillington Close, Upper Halling, Rochester, Kent, ME2 — £185,500 • 2 bed • 1 bath • 614 ft²
2 bedroom end of terrace house for sale in Holborough Road, Snodland, Kent, ME6 — £231,000 • 2 bed • 1 bath • 1281 ft²














































































