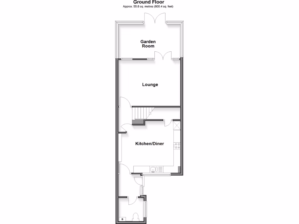
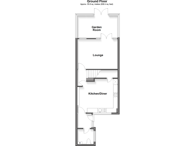
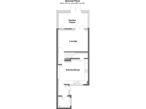
Small, low-maintenance house with modern kitchen and garden room.
Two double bedrooms with extended garden room space
A compact two-bedroom terraced home arranged over a practical layout, extended to the rear to provide a bright garden room and extra entertaining space. The modern fitted kitchen, double glazing and gas central heating make it comfortable and largely move-in ready for a buyer seeking low-maintenance living.
This property is offered with a Home for Life Lifetime Lease example for buyers aged 60+, which can allow purchase of up to a 50% share and typically reduces the up-front price (guide Lifetime Lease figure shown here is £178,500; full market price £270,000). Actual Lifetime Lease cost depends on age, personal circumstances and the share chosen.
Set in a quiet cul-de-sac with good transport links, the house suits a retirement buyer wanting a small, manageable home with usable garden space. Be aware the overall internal size is small (about 453 sq ft) and the rear garden requires some modernisation. The local area scores as more deprived than average, which may affect long-term resale prospects.
Buyers should verify tenure, any planning or building consents for the extension, and the exact Lifetime Lease terms if choosing that purchase route. Council tax is described as low, and nearby schools and amenities are within easy reach for visitors or family.
2 bedroom end of terrace house for sale in The Tideway, Rochester, Kent, ME1 — £198,500 • 2 bed • 2 bath • 492 ft²
2 bedroom terraced house for sale in Marlowe Road, Poets Development, Larkfield, Kent, ME20 — £185,500 • 2 bed • 1 bath • 700 ft²
2 bedroom end of terrace house for sale in Sherbourne Drive, Barming, Maidstone, Kent, ME16 — £192,000 • 2 bed • 1 bath • 531 ft²
2 bedroom terraced house for sale in Burghclere Drive, Maidstone, Kent, ME16 — £198,000 • 2 bed • 1 bath • 461 ft²
2 bedroom terraced house for sale in Middleton Close, Rainham, Gillingham, Kent, ME8 — £175,000 • 2 bed • 1 bath • 722 ft²
2 bedroom terraced house for sale in Keats Road, Larkfield, Aylesford, Kent, ME20 — £198,500 • 2 bed • 1 bath • 1120 ft²






























































