Chain-free two-bed with private garden, garage and right to moor.
Partially listed character cottage with original sash windows
A charming two-bedroom terraced cottage set in a peaceful riverside hamlet, offered chain free and with direct shared river frontage. Original period features and sash windows give the house character, while a mature private rear garden and communal riverside gardens extend the living space outdoors. The property includes the rare benefit of a right to moor a boat—ideal for anyone who enjoys riverside life.
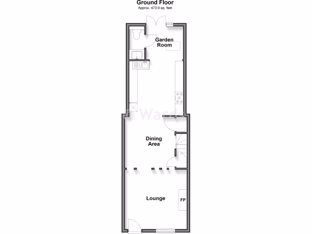
Practical benefits include a double garage en bloc with rear parking and off-street space, plus double glazing installed since 2002. The layout provides comfortable rooms (total about 868 sq ft) with a larger second bedroom and useful ground-floor cloakroom. Freehold tenure and a tranquil rural setting suit downsizers seeking a low-density location with good mobile signal.
Buyers should note this is a partially listed, timber-framed cottage assumed to have no cavity insulation in the walls, and heating runs from an LPG boiler—prospective owners should factor running costs and any conservation constraints into plans. Broadband speeds are reported as slow, which may affect home working. Council tax sits above average for the area. As with older properties, appliances and services require independent verification.
2 bedroom terraced house for sale in Tutsham Farm, West Farleigh, Maidstone, Kent, ME15 — £330,500 • 2 bed • 2 bath • 868 ft²
3 bedroom terraced house for sale in Mill Cottages, West Farleigh, ME15 — £475,000 • 3 bed • 1 bath • 1142 ft²
2 bedroom end of terrace house for sale in Kettle Lane, East Farleigh, Maidstone, Kent, ME15 — £325,000 • 2 bed • 1 bath • 593 ft²
2 bedroom character property for sale in High Street, Aylesford, ME20 — £367,500 • 2 bed • 1 bath • 1125 ft²
6 bedroom detached house for sale in Wickham Lodge, The Quay, Aylesford, ME20 — £1,250,000 • 6 bed • 5 bath • 3318 ft²
2 bedroom terraced house for sale in High Street, Aylesford, ME20 — £425,000 • 2 bed • 1 bath • 1418 ft²














































































