Three-home scheme with planning consent in a desirable Belper location.
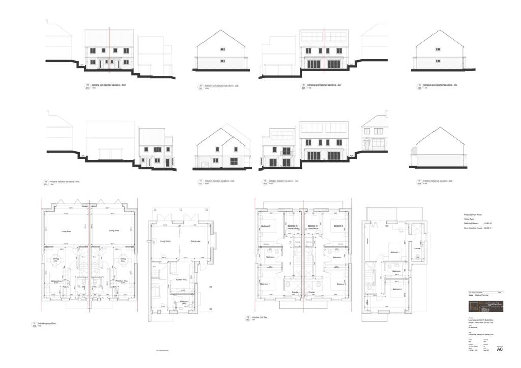
Full Planning Permission for two semis and one detached three-bed house
Large freehold plot in sought-after Bullsmoor, Belper location
Good transport links to A38 and M1; close to Belper town centre
Medium flooding risk — mitigation likely required
Total ground area not formally measured; survey recommended
Excellent mobile signal but slow broadband speeds on site
Outline consent reference AVA/2023/0915 included in documentation
Local schools mixed Ofsted ratings; low local crime
A substantial freehold plot in Bullsmoor, Belper, offered with Full Planning Permission to build two semi-detached three-bedroom homes (each approx. 98 sq m) and one detached three-bedroom home (approx. 110 sq m). The site is large and positioned for convenient access to Belper town centre, the A38 and M1, making it suitable for small-scale residential developers or investors targeting family homes in a sought-after area.
Practical considerations are clear: the title is freehold and outline consent (AVA/2023/0915) supports the approved scheme, but aerial images are indicative and the total ground area has not been formally measured. Prospective buyers should commission their own surveys to confirm exact boundaries and ground conditions prior to exchange. There is a medium flooding risk on record and buyers should factor any mitigation costs into budgets.
The plot benefits from excellent mobile signal and low local crime, while broadband speeds are slow — potentially requiring upgraded infrastructure for end buyers. Local schools include a mix of Ofsted ratings, from Outstanding to Requires Improvement, and nearby transport and amenities support resident convenience. This opportunity suits developers or investors seeking a ready-planned small development in an affluent rural-life setting, with straightforward access to regional transport routes.
Note: purchasers must satisfy themselves about the proposed scheme, ground conditions and measurements. Aerial imagery is for guidance only.
Land for sale in Sandbed Lane, Belper, DE56 — £100,000 • 1 bed • 1 bath
Land for sale in Derby Road, Risley, Derby, DE72 — £250,000 • 4 bed • 2 bath • 658 ft²
Land for sale in Land off Bullbridge Hill, Belper, Amber Gate, DE56 2EX, DE56 — POA • 1 bed • 1 bath
Plot for sale in Chestnut Avenue, Belper, DE56 — £60,000 • 1 bed • 1 bath
Land for sale in Valley VIew, Belper, DE56 — £110,000 • 2 bed • 1 bath
Plot for sale in Windy Lane, Little Eaton, Derby, DE21 — £550,000 • 1 bed • 1 bath • 3047 ft²














