Well-located industrial unit with fitted offices and secure yard for investors or occupiers.
Freehold light-industrial unit of c.7,758 sq ft
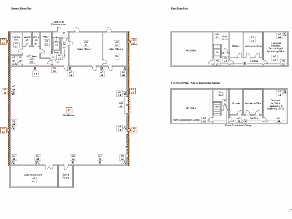
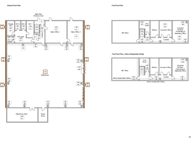
A substantial freehold light industrial unit of 7,758 sq ft positioned under 0.5 miles from Sheffield city centre and c.0.25 miles from Sheffield station. The steel-framed warehouse offers generous internal height (eaves 6.1m, apex 7.2m), a glazed entrance, roller shutter and a mezzanine, making it suitable for warehousing, trade counter or flexible industrial uses. Two-storey integral offices are fitted to a good standard with air conditioning, LG3 lighting, kitchen and WC facilities. The site is offered vacant and includes 13 marked car parking spaces, secure perimeter fencing and two sets of yard gates.
The location on Sheaf Gardens Industrial Estate gives excellent connectivity via the A61 inner ring road and Sheffield Parkway to the M1. Nearby occupiers and local amenities support business operations and staff needs. The property is held freehold (Title SYK462683) and is sold at £750,000; VAT is understood not to be payable.
Notable positives include strong footprint, fitted office accommodation, secure yard and good transport links. Material considerations for buyers: the area records very high crime levels and a medium flood risk — both factors that may affect insurance and security costs. Prospective owner-occupiers or investors should also note the current Rateable Value (£34,500) and are encouraged to verify business rates and running costs with the local authority.
Suitable buyers will be those seeking a ready-to-use warehouse with office integration close to central Sheffield or investors targeting long-lease light industrial assets. The building’s size, parking provision and secure yard deliver immediate operational value; conversely, high local crime and flood risk are practical downsides to factor into occupation or refurbishment budgets.
Warehouse for sale in Units 1 To 3, Bold Street, Sheffield, S9 2LR, S9 — £950,000 • 1 bed • 1 bath • 10836 ft²
Distribution warehouse for sale in 11 Roman Ridge Road, Sheffield, S9 1GB, S9 — POA • 1 bed • 1 bath • 5561 ft²
Warehouse for sale in Blast Lane, Sheffield, South Yorkshire, S4 7TA, S4 — £2,200,000 • 1 bed • 1 bath
Warehouse for sale in Unit 6 Carlisle Business Park, Chambers Lane, Sheffield, S4 — £325,000 • 1 bed • 1 bath • 2761 ft²
Warehouse for sale in 5 Bamforth Street, Sheffield, South Yorkshire, S6 2HD, S6 — £350,000 • 1 bed • 1 bath • 2880 ft²
Distribution warehouse for sale in 160 Solly Street, Sheffield, S1 4BF, S1 — POA • 1 bed • 1 bath • 11421 ft²










































































