Large plot, modern specification and NHBC-backed confidence for growing families.
Detached double garage and driveway parking for multiple vehicles
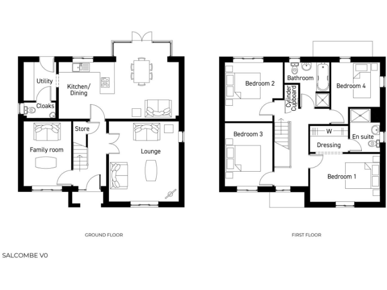
A modern four-bedroom detached house on the Thorpe Meadows development, built by Harron Homes and covered by an NHBC 10-year warranty. The Salcombe layout centres on a bright open-plan kitchen and dining area with French doors to a large private garden and a detached double garage, offering family-friendly outdoor space and secure parking.
Downstairs living is flexible: a generous lounge, a separate family room ideal as a snug, playroom or home office, and a utility with cloakroom access keep everyday life organised. Upstairs the master suite includes a dressing area with fitted Hammonds wardrobes and a private en-suite, with three further bedrooms arranged around a roomy landing.
This is a new-build property with modern finishes and fast broadband and mobile signal, suitable for buyers seeking low-maintenance living and contemporary design. The plot is larger than typical for the development, providing scope for garden landscaping or external entertaining.
Important practical points: the listing records the property as having one bathroom — buyers should confirm the exact sanitary provision and layout before proceeding. Crime levels in the area are above average and tenure is not specified in the details provided, so verify tenure and local safety measures during purchase enquiries.
4 bedroom detached house for sale in Chesterfield Road,
Holmewood,
S42 5TD, S42 — £372,000 • 4 bed • 2 bath • 1182 ft²
4 bedroom detached house for sale in Linacre Road,
Chesterfield ,
Derbyshire,
S40 4UX, S40 — £400,000 • 4 bed • 1 bath • 1102 ft²
4 bedroom detached house for sale in Bolsover Road,
Mastin Moor,
S43 3FF, S43 — £394,500 • 4 bed • 1 bath • 1097 ft²
4 bedroom detached house for sale in Brand Lane,
Stanton Hill,
Sutton-In-Ashfield,
NG17 3GH, NG17 — £399,000 • 4 bed • 2 bath • 1533 ft²
4 bedroom detached house for sale in 2 Manor Farm Row, Upperthorpe Road Killamarsh S21 — £365,000 • 4 bed • 2 bath • 1227 ft²
3 bedroom detached house for sale in Brand Lane,
Stanton Hill,
Sutton-In-Ashfield,
NG17 3GH, NG17 — £289,000 • 3 bed • 1 bath • 856 ft²


















































