Modern family living with warranty and easy access to Chesterfield and countryside.
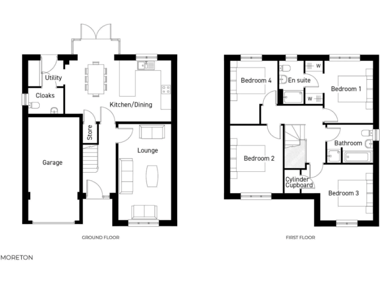
- Four-bedroom detached new-build with master en‑suite and dressing room
- High-spec Symphony kitchen with Bosch appliances and open-plan dining
- French doors to a small rear garden; compact external outdoor space
- Integral garage and separate utility with ground-floor cloakroom
- NHBC 10-year warranty offers new-build reassurance
- Total internal area ~1,097 sq ft — bedrooms and rooms are compact
- Local area: very deprived index and above-average recorded crime
- Strong transport links and 20 hectares green space nearby
This four-bedroom detached new-build on Bolsover Road offers a modern, family-focused layout with recognised warranty cover. The ground floor is open-plan with a high-spec kitchen and dining area that opens via French doors to a small rear garden, creating an easy indoor–outdoor flow for family life and entertaining. A separate utility and cloakroom add practical convenience, while an integral garage provides parking and storage options.
Upstairs houses a master suite complete with dressing room and en‑suite, two further doubles and a good single bedroom — useful as a nursery or home office. Fittings include Symphony kitchens and Bosch appliances, and the home benefits from NHBC 10-year warranty, giving buyers added confidence in a new build. Measured rooms are compact but well planned around a useful 1,097 sq ft footprint.
There are some material trade-offs to note. The plot and overall property size are small for a four-bedroom detached, so outdoor space and internal circulation are relatively limited. The wider local area scores high on deprivation indices and recorded crime is above average, factors worth considering for families prioritising community environment. Transport links to Chesterfield and nearby green space are strong, which balances the location for buyers needing road and rail access.
This house will suit buyers seeking a contemporary, low-maintenance family home with modern fixtures and warranty protection, and those wanting sensible room proportions rather than large country house spaces. Investors or purchasers prioritising larger gardens, more privacy, or a quieter postcode may want to compare nearby alternatives.
4 bedroom detached house for sale in Bolsover Road,
Mastin Moor,
S43 3FF, S43 — £369,000 • 4 bed • 1 bath • 963 ft²
4 bedroom detached house for sale in Bolsover Road,
Mastin Moor,
S43 3FF, S43 — £410,000 • 4 bed • 1 bath • 953 ft²
4 bedroom detached house for sale in Bolsover Road,
Mastin Moor,
S43 3FF, S43 — £375,000 • 4 bed • 1 bath • 1139 ft²
4 bedroom detached house for sale in Bolsover Road,
Mastin Moor,
S43 3FF, S43 — £335,000 • 4 bed • 1 bath • 913 ft²
4 bedroom detached house for sale in Linacre Road,
Chesterfield ,
Derbyshire,
S40 4UX, S40 — £400,000 • 4 bed • 1 bath • 1102 ft²
4 bedroom detached house for sale in Brand Lane,
Stanton Hill,
Sutton-In-Ashfield,
NG17 3GH, NG17 — £365,000 • 4 bed • 1 bath • 1336 ft²










































