New-build family home beside woodland with high-spec kitchen and garage.
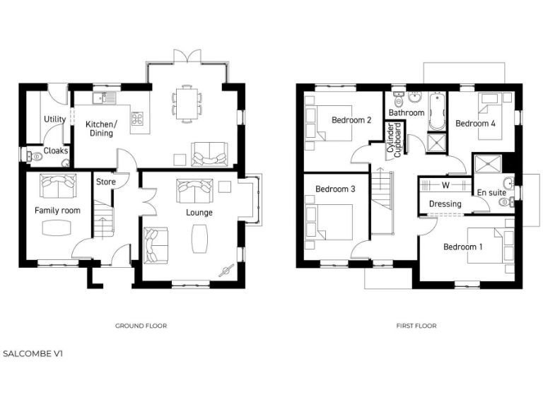
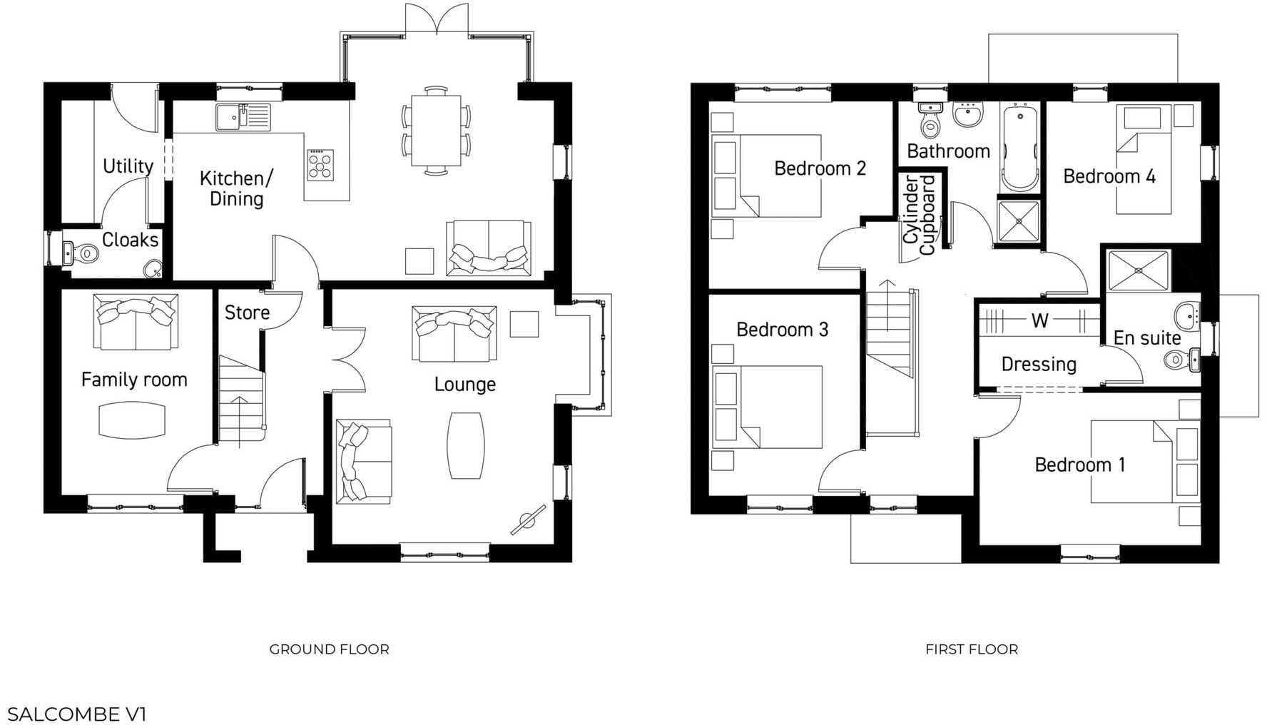
Four-bedroom detached new-build with detached double garage
Show-stopping open-plan kitchen-dining with French doors to garden
Master bedroom with en-suite and dressing area
Separate family room suitable as office, playroom or snug
Small plot for a detached house — limited outdoor space
Local area shows higher deprivation measures
Mixed school ratings nearby; one primary Inadequate, secondary Requires Improvement
Fast broadband and excellent mobile signal; average crime
A modern four-bedroom detached new-build designed for family living, set beside Brierley Forest Park for easy access to woodland walks and open space. The ground floor centres on a show-stopping open-plan kitchen-dining area with French doors to the rear garden, plus a spacious lounge and separate family room that can serve as a playroom or home office. A detached double garage and utility room add practical storage and parking space.
Upstairs the master suite includes an en-suite and dressing area; three further bedrooms provide flexible space for children, guests or study. The specification offers choice options (kitchen units, built-in wardrobes) and a luxury family bathroom with bath and walk-in shower. Broadband is fast and mobile signal is excellent, supporting home working and streaming.
Important practical points: the plot is described as small for a detached house, and the wider area shows higher deprivation measures. Local school ratings are mixed — some primaries are Good while one primary is rated Inadequate and the nearest secondary Requires Improvement. Crime levels are average. This home is freehold, not at flood risk, and is offered with developer incentives on specific plots.
4 bedroom detached house for sale in Brand Lane,
Stanton Hill,
Sutton-In-Ashfield,
NG17 3GH, NG17 — £365,000 • 4 bed • 1 bath • 1336 ft²
4 bedroom detached house for sale in Bolsover Road,
Mastin Moor,
S43 3FF, S43 — £394,500 • 4 bed • 1 bath • 1097 ft²
4 bedroom detached house for sale in Chesterfield Road,
Holmewood,
S42 5TD, S42 — £425,000 • 4 bed • 1 bath • 1056 ft²
4 bedroom detached house for sale in Beck Lane,
Sutton-In-Ashfield,
Nottinghamshire,
NG17 3AH, NG17 — £377,995 • 4 bed • 1 bath • 1134 ft²
4 bedroom detached house for sale in Plot 13 The Kingfisher High Oakham Hill, Mansfield, NG18 — £525,000 • 4 bed • 2 bath • 1663 ft²
4 bedroom detached house for sale in Stonebridge Lane,
Market Warsop,
Mansfield,
Nottinghamshire,
NG20 0DS, NG20 — £387,995 • 4 bed • 1 bath • 1116 ft²














































