Affordable period home near Tonbridge High Street and mainline station.
Victorian mid-terrace with period sash windows and chimney features
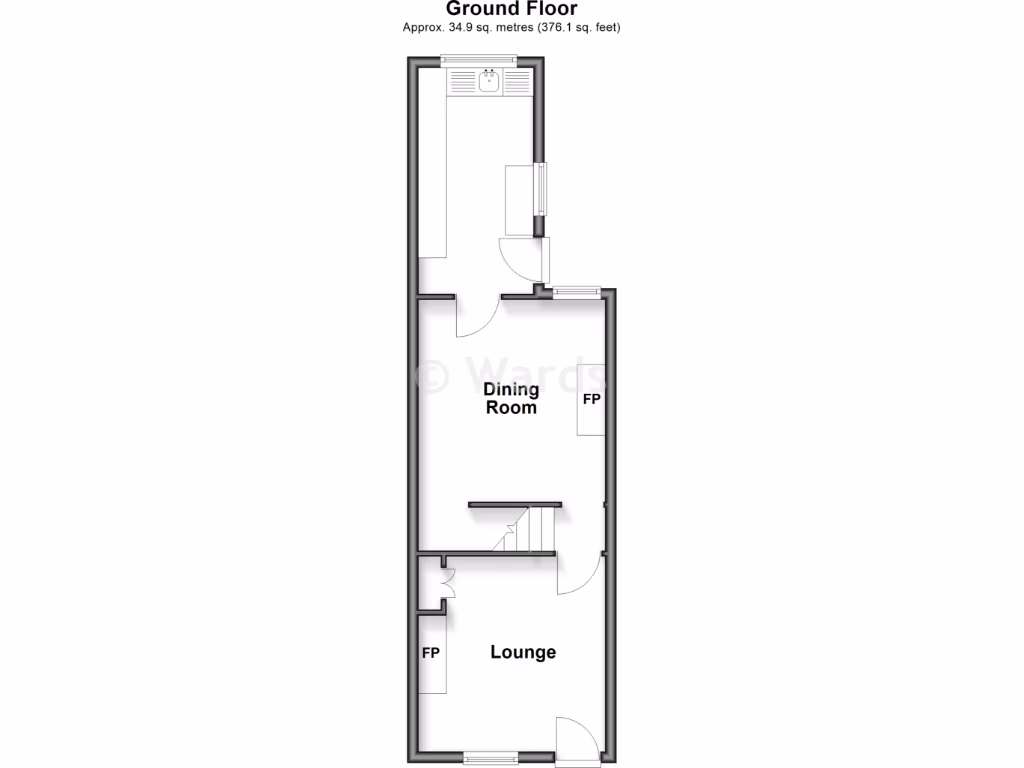
Two bedrooms, extended kitchen and first-floor bathroom, 732 sq ft
Guide Lifetime Lease price for over-60s: £198,500 (example 33% saving)
Full market price £300,000; Lifetime Lease depends on age/circumstances
Requires slight modernisation; cosmetic updating and maintenance needed
Solid brick walls likely uninsulated — potential energy-efficiency work required
Small, overgrown rear garden; low-maintenance but needs clearing
Convenient for High Street, station, shops and strong local schools
This Victorian mid-terrace offers an affordable route into Tonbridge with period charm and convenient town-centre access. The house has two bedrooms, an extended kitchen and a first-floor bathroom, arranged over a compact 732 sq ft layout suited to downsizers or those seeking a manageable home in an established neighbourhood.
The property needs some modernisation and cosmetic updating; solid brick walls likely lack cavity insulation and the rear garden is small and overgrown, so expect basic maintenance and potential energy-efficiency upgrades. Room sizes are modest, and the house is best for buyers comfortable with a modest renovation programme rather than a full-scale rebuild.
A Home for Life Lifetime Lease from Homewise is available to purchasers aged 60 and over, typically reducing the up-front cost. The full market price is £300,000; the Homewise guide price shown is £198,500 (example saving ~33%). Actual Lifetime Lease price depends on age, circumstances and any share of the property you choose to buy (up to 50%).
Positioned close to Tonbridge High Street, local amenities and the mainline station, the location is a strong selling point. Nearby schools include excellent state secondaries and good primaries, and local services and transport links are within easy walking distance. Verify tenure, dimensions and any service condition checks before purchase.
2 bedroom end of terrace house for sale in Woodside Road, Tonbridge, Kent, TN9 — £231,500 • 2 bed • 1 bath • 1174 ft²
2 bedroom terraced house for sale in Woodside Road, Tonbridge, Kent, TN9 — £325,000 • 2 bed • 1 bath • 732 ft²
1 bedroom end of terrace house for sale in College Avenue, Tonbridge, Kent, TN9 — £165,500 • 1 bed • 1 bath • 582 ft²
2 bedroom ground floor flat for sale in Springwell Road, Tonbridge, Kent, TN9 — £185,500 • 2 bed • 1 bath • 549 ft²
2 bedroom semi-detached house for sale in College Avenue, Tonbridge, Kent, TN9 — £281,000 • 2 bed • 1 bath • 582 ft²
2 bedroom ground floor flat for sale in Beulah Road, Tunbridge Wells, Kent, TN1 — £215,000 • 2 bed • 1 bath • 778 ft²






































