Ideal starter close to town centre and rail links for commuting buyers.
Victorian mid-terrace with high ceilings and period character
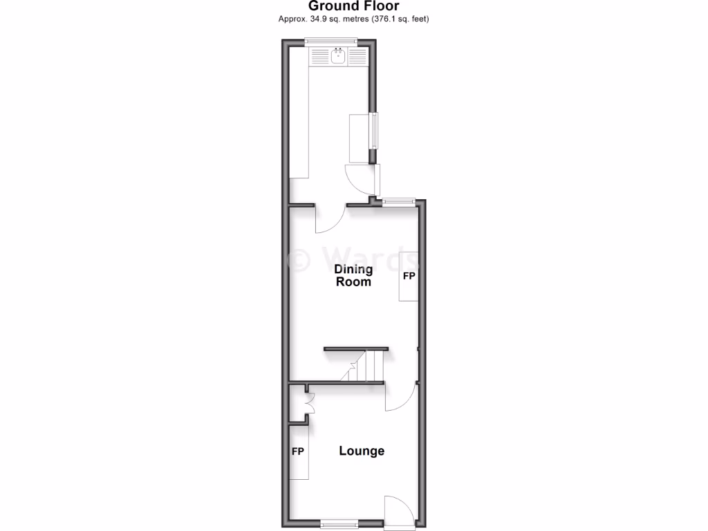
Extended kitchen and first-floor family bathroom in place
Requires slight modernisation and likely insulation upgrades
Solid brick construction; walls assumed uninsulated
Small, sunny rear garden currently overgrown and fenced
Freehold tenure; affordable council tax banding
Convenient for High Street shops, restaurants and mainline station
Fast broadband and excellent mobile signal; low local crime
This two-bedroom Victorian mid-terrace offers a genuine entry-level opportunity in Tonbridge, close to the High Street and mainline station. Period features and high ceilings give the house character, while the layout is straightforward and practical for first-time buyers.
The property needs slight modernisation throughout: cosmetic updating, some renovation work and likely insulation upgrades to the solid brick walls. The house benefits from an extended kitchen and a first-floor bathroom; room sizes are well proportioned for the overall 732 sq ft footprint. Heating is by mains gas boiler and radiators.
Outside, there is a small but sunny rear garden that is currently overgrown and will need some clearance and basic maintenance to make the most of the space. The plot is modest, so gardening is low maintenance but limited in scale.
Practical advantages include freehold tenure, fast broadband, excellent mobile signal and low local crime. The area is affluent with strong local schools nearby, making the house suitable for buyers wanting a long-term family base or those aiming to add value through sensible improvements.
2 bedroom terraced house for sale in Baltic Road, Tonbridge, Kent, TN9 — £349,000 • 2 bed • 1 bath • 668 ft²
2 bedroom terraced house for sale in Woodside Road, Tonbridge, Kent, TN9 — £198,500 • 2 bed • 1 bath • 732 ft²
2 bedroom end of terrace house for sale in Woodside Road, Tonbridge, Kent, TN9 — £350,000 • 2 bed • 1 bath • 1174 ft²
2 bedroom terraced house for sale in Priory Street, Tonbridge, Kent, TN9 — £349,950 • 2 bed • 1 bath • 647 ft²
2 bedroom terraced house for sale in Pembury Road, Tonbridge, TN9 — £290,000 • 2 bed • 1 bath • 602 ft²
2 bedroom end of terrace house for sale in Woodside Road, Tonbridge, Kent, TN9 — £300,000 • 2 bed • 1 bath • 643 ft²






































