Low-maintenance two-bed close to station — lifetime-lease option for over-60s.
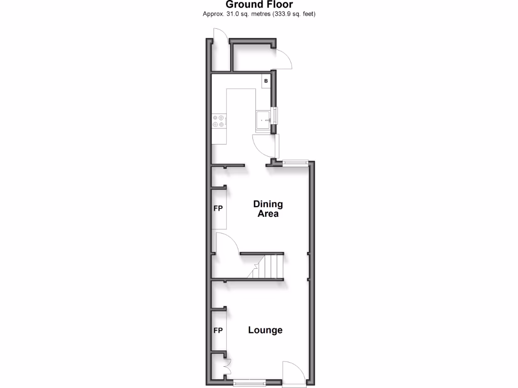
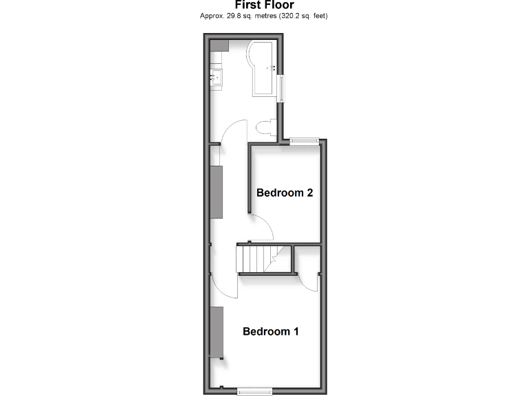
Two bedrooms with modern fitted kitchen and bathroom
Short walk to Tonbridge station and High Street shops
Lifetime Lease option for over-60s — guide price £231,500
Full market price £350,000; final price varies by age/circumstances
Freehold tenure; described as suitable for retirement living
Small plot with charming rear patio — low garden maintenance
Single bathroom only; compact room sizes throughout
Fast broadband, excellent mobile signal; low local crime
This well-presented two-bedroom end-of-terrace house sits within easy walking distance of Tonbridge station and the High Street, offering convenient town-centre living with a small, manageable garden and patio. The interior includes a modern fitted kitchen and bathroom, double glazing, gas central heating with boiler and radiators, and around 1,174 sq ft of overall space laid out in a straightforward linear plan. The property is freehold and described as suitable for retirement living.
There is a Homewise Home for Life Lifetime Lease option for buyers aged 60+, which typically reduces the purchase cost versus full market value. The guide Lifetime Lease price shown is £231,500 (based on an average saving of 33%); the full market price is £350,000. The plan lets eligible buyers buy a share of the property (up to 50%) to safeguard value, but actual price depends on age and circumstances.
Practical positives include a low-crime, very affluent area with fast broadband and excellent mobile signal, nearby well-ranked schools and local amenities. Notable considerations: the Lifetime Lease route is restricted to over-60s and the price you pay will vary; the plot is small and the house has one bathroom. Viewers should verify tenure, measurements and any retrofit or planning history before deciding.
This home will suit a retiree seeking a low-maintenance, centrally located property or an investor/first-time buyer comfortable with a small garden and the single-bathroom layout. The property is presented for viewing but purchasers must confirm all details via their solicitor.
2 bedroom terraced house for sale in College Avenue, Tonbridge, Kent, TN9 — £281,000 • 2 bed • 1 bath • 593 ft²
2 bedroom terraced house for sale in Vale Road, Tonbridge, Kent, TN9 — £198,500 • 2 bed • 1 bath • 657 ft²
2 bedroom ground floor flat for sale in Springwell Road, Tonbridge, Kent, TN9 — £185,500 • 2 bed • 1 bath • 549 ft²
2 bedroom flat for sale in Waterloo Road, Tonbridge, Kent, TN9 — £122,500 • 2 bed • 1 bath • 625 ft²
2 bedroom ground floor flat for sale in Avebury Avenue, Tonbridge, Kent, TN9 — £214,500 • 2 bed • 1 bath • 593 ft²
2 bedroom ground floor flat for sale in Whitefriars Wharf, Tonbridge, Kent, TN9 — £165,000 • 2 bed • 1 bath • 625 ft²


























































