BS31 3JT - 4 bedroom detached house for sale in Bath Road, Saltford, B…

View on Property Piper

4 bedroom detached house for sale in Bath Road, Saltford, BS31

Summary - DRYLEAZE BATH ROAD SALTFORD BRISTOL BS31 3JT

4 bed 2 bath Detached

Secluded farmhouse on 8+ acres with lake, paddocks and easy Bath access.
Spring-fed lake with central island and mature orchard
Over 8 acres including pony paddocks and outbuildings
Four double bedrooms; master with en-suite and balcony
Versatile reception layout plus cellar currently used as office
Detached double garage and long tree-lined driveway
Not at risk of flooding; excellent mobile and fast broadband
Large grounds demand ongoing maintenance or management
Council Tax Band G — relatively expensive
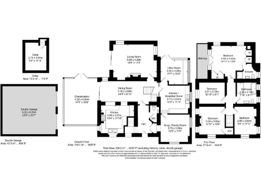
Set within over eight acres of mature grounds yet only a short drive from Bath, this double-fronted detached farmhouse blends rural seclusion with family-sized living. The house offers versatile accommodation across 2,435 sq ft: two reception rooms (one with a wood burner), conservatory, kitchen, cellar/office and four double bedrooms, including a master with en-suite shower and balcony. Private features such as a spring-fed lake, orchard and pony paddocks create rare lifestyle appeal for equestrian, hobby-farming or gardening families.

Outbuildings, a detached double garage and long tree-lined driveway provide generous storage and parking. The formal gardens, terraces and south-facing aspects overlook Duchy farmland and woodland walks; excellent local schools and a frequent bus to Bath make the location unusually convenient for a countryside home. Broadband and mobile signals are strong and the property is not at flood risk.

Practical points to note: the grounds are extensive and will require ongoing maintenance or management if you are not keeping livestock; outbuildings and paddocks may need upkeep to suit specific uses. Council Tax is expensive (Band G), and the house was constructed in the 1983–1990 period, so buyers should confirm specifics of services and any modernisation preferences during survey. Overall this is a well-presented rural family home with substantial outdoor potential close to Bath.

Property Details

Brochure Descriptions

Image Descriptions

Floorplan Description

Rooms

Textual Property Features

Target Audience

AI Tags

Detected Visual Features

EPC Details

Nearby Schools

Nearest Bars And Restaurants

,,,,}

Nearest General Shops

,,}

Nearest Grocery shops

,,}

Nearest Supermarkets

,,}

Nearest Religious buildings

,,}

Nearest Medical buildings

,,,}

Nearest Airports

}

Nearest Leisure Facilities

,,,,}

Nearest Tourist attractions

,,}

Nearest Train stations

,,,,}

Nearest Bus stations and stops

,,,,}

Nearest Hotels

,,}

Tags

Local Market Stats

AirBnB Data

Similar Properties

Meta

High Res Images

Compatible Images

Low res Images

Thumbnails

Raw Images

High Res Floorplan Images

Compatible Floorplan Images

Low res Floorplan Images

FloorplanImages Thumbnail

Raw Floorplan Images