Well-presented period home close to shops and transport for family living.
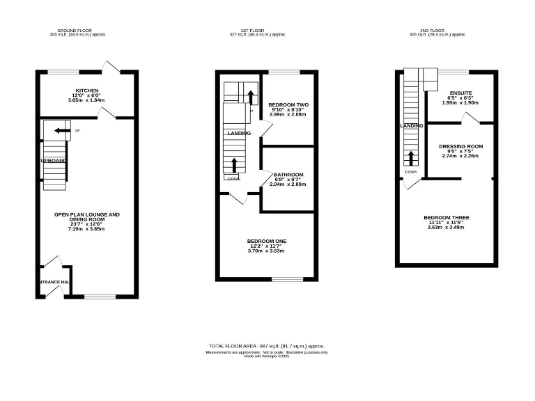
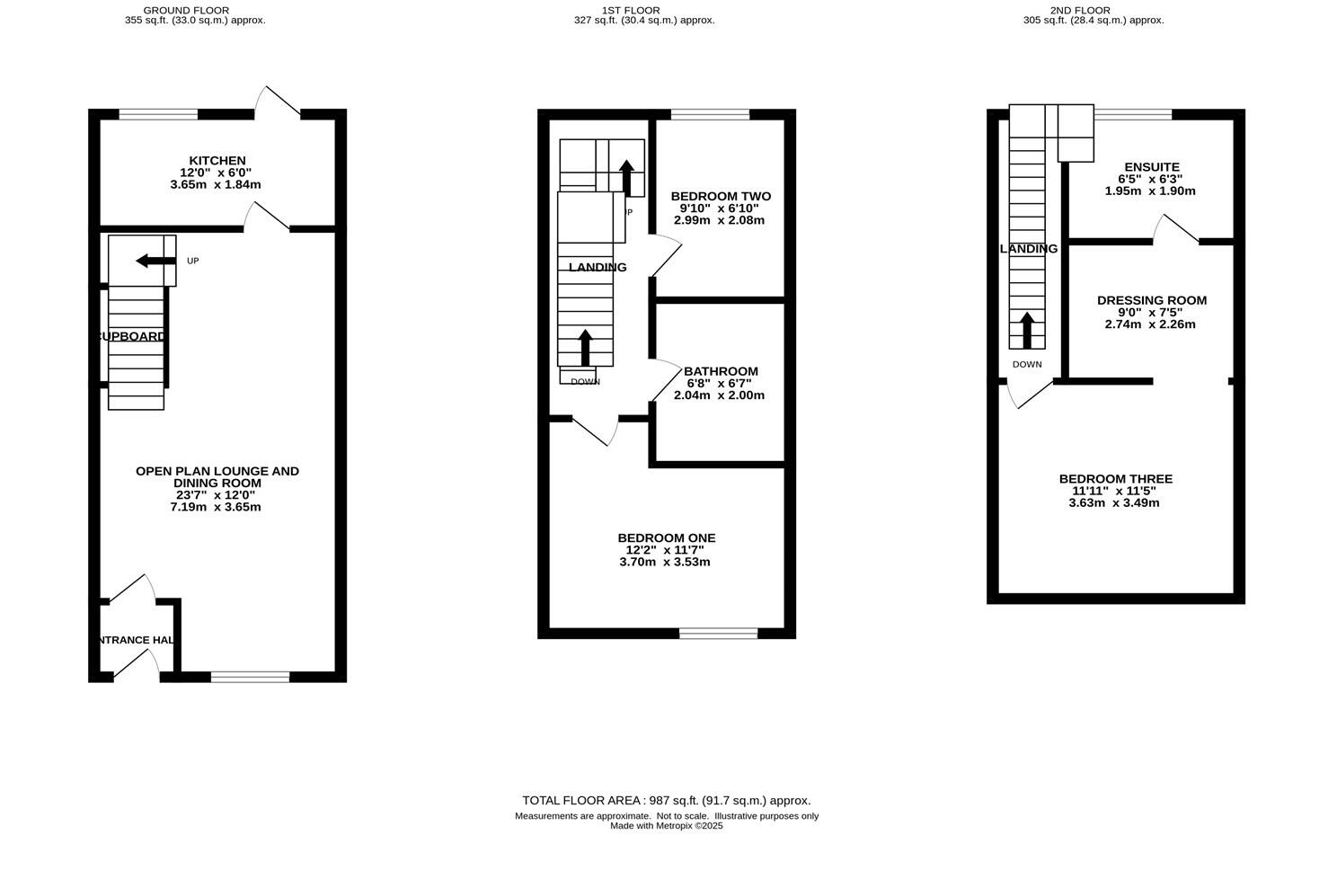
3 bedrooms and 2 bathrooms over three floors
Private rear yard laid to decking — very small plot
Period features (cast-iron fireplace) with modern UPVC windows
Gas central heating with combi boiler in kitchen cupboard
Convenient town-centre location with excellent mobile signal
Freehold tenure, approx 987 sq ft, cheap council tax
Area shows deprivation and average crime — local services mixed
Multi-storey layout; not easily suitable for limited mobility
This well-presented three-bedroom, two-bathroom weavers cottage offers comfortable family living across three floors in a convenient town-centre location. The house retains period character with a cast-iron fireplace and benefits from modern comforts including gas central heating and UPVC double glazing.
The layout works well for families: ground-floor lounge and dining rooms, a fitted kitchen with a cupboard housing the combi boiler, two first-floor bedrooms plus a family bathroom, and a top-floor master bedroom with dressing/walk-in wardrobe and en suite. The private rear yard is low-maintenance decking — practical but very small.
Location is a clear strength: short walks to Macclesfield town centre amenities and good public transport links. Practical details include average overall size (approximately 987 sq ft), freehold tenure, cheap council tax and no flooding risk. The multi-storey layout and narrow plot may suit families comfortable with stairs rather than those needing step-free access.
Buyers should note the wider area shows signs of deprivation and average crime levels; nearby schools have mixed Ofsted ratings. The property is well presented now but could appeal equally to those wanting a ready-to-move-in home or owners seeking modest cosmetic improvements to personalise the space.
3 bedroom terraced house for sale in Paradise Street, Macclesfield, SK11 — £249,950 • 3 bed • 1 bath • 720 ft²
3 bedroom terraced house for sale in High Street, Macclesfield, SK11 — £210,000 • 3 bed • 1 bath • 787 ft²
4 bedroom terraced house for sale in Bond Street, Macclesfield, SK11 — £280,000 • 4 bed • 1 bath • 1170 ft²
3 bedroom terraced house for sale in St. Georges Street, Macclesfield, SK11 — £229,950 • 3 bed • 2 bath • 1012 ft²
2 bedroom terraced house for sale in Roe Street, Macclesfield, SK11 — £225,000 • 2 bed • 2 bath • 1206 ft²
3 bedroom terraced house for sale in Bond Street, Macclesfield, SK11 — £209,950 • 3 bed • 2 bath • 819 ft²


























































































