Chain-free Victorian cottage — move-in ready with modern kitchen and utility room.
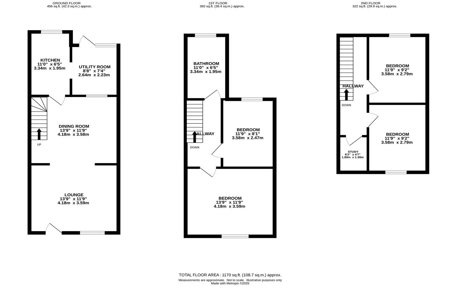
- Four double bedrooms across three floors
- Newly refurbished: kitchen, bathroom, flooring and carpets
- East-facing private rear garden with decking and artificial turf
- Single main bathroom for four bedrooms
- Solid brick walls assumed uninsulated — consider efficiency upgrades
- On-street parking only; small plot size
- Chain-free freehold; gas central heating and double glazing
- Close to town centre, good schools, low-crime area
This beautifully refurbished four-bedroom Weavers cottage offers flexible family accommodation across three floors. Recent works include new flooring and carpets, a refitted kitchen, a matched utility room and a stylish bathroom with a walk-in shower — the house is ready to move into and offered chain-free.
Light-filled rooms and a contemporary open-plan dining-living space make daily life straightforward, while a separate study and four double bedrooms provide room for home working and growing families. The east-facing rear garden has low-maintenance decking and artificial turf, useful for children and easy upkeep.
Practical benefits include gas central heating, double glazing and freehold tenure. The property sits close to Macclesfield town centre with good local amenities and a range of nearby schools, and the area has low crime and excellent mobile and broadband connections.
Notable drawbacks are practical rather than cosmetic: there is one main bathroom serving four bedrooms, the plot is small with on-street parking only, and the original solid brick walls are assumed to have no added insulation — buyers may wish to consider energy-efficiency improvements in future.
3 bedroom terraced house for sale in Bond Street, Macclesfield, SK11 — £235,000 • 3 bed • 2 bath • 915 ft²
2 bedroom terraced house for sale in Roe Street, Macclesfield, SK11 — £225,000 • 2 bed • 2 bath • 1206 ft²
3 bedroom terraced house for sale in Hurdsfield Road, Macclesfield, SK10 — £219,950 • 3 bed • 2 bath • 915 ft²
3 bedroom terraced house for sale in Bond Street, Macclesfield, SK11 — £209,950 • 3 bed • 2 bath • 819 ft²
3 bedroom terraced house for sale in Crompton Road, Macclesfield, Cheshire, SK11 — £259,950 • 3 bed • 1 bath • 1236 ft²
2 bedroom house for sale in Buxton Road, Macclesfield, SK11 — £190,000 • 2 bed • 1 bath • 656 ft²






















































































