Two executive four-bedroom homes with strong projected returns in rural Gloucestershire.
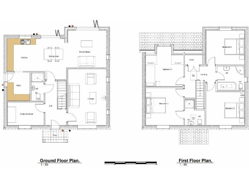
Full planning permission for two four-bed detached homes, garages and gardens
Huge freehold plot in sought-after Oldcroft, Forest of Dean
Anticipated combined GDV £1.2m–£1.4m; strong resale and rental prospects
Shovel-ready — immediate start possible, minimal planning delay risk
Sold at online auction 29 Oct 2025; unconditional sale, 10% deposit required
Buyers must review legal pack — special conditions may impose extra costs
No flood risk; rural setting, fast broadband, average mobile signal
Construction and build costs not included; buyer responsible for build programme
This is a shovel-ready development plot in Oldcroft with full planning permission for two executive four-bedroom detached homes, each with garages, parking and private gardens. The consent removes typical pre-construction delays, allowing immediate start on site and a focused build programme for quick delivery.
The large freehold plot sits in a peaceful Forest of Dean village setting, attractive to family buyers and higher-income purchasers. Market comparables and projected rents indicate strong resale and rental potential, with an anticipated combined GDV of £1.2–£1.4m and rental income estimated at £27,000–£30,000 per unit.
Buyers should note this will be sold at auction (online) on 29 October 2025 under unconditional auction terms. A 10% deposit is payable on exchange. The legal pack and special conditions should be reviewed carefully: any additional costs or obligations listed there will be payable on completion. This opportunity suits developers, investor-builders or experienced self-builders ready to manage construction promptly.
Plot for sale in Building Plot, Ruardean Hill, Drybrook, GL17 — £495,000 • 1 bed • 1 bath
Land for sale in Joyford, Coleford, GL16 — £140,000 • 1 bed • 1 bath • 8276 ft²
Residential development for sale in Coomb Drive, Cinderford, GL14 — £150,000 • 1 bed • 1 bath
Residential development for sale in Lydbrook, Gloucestershire, GL17 — £780,000 • 1 bed • 1 bath
Plot for sale in Yartleton Lane, May Hill, Longhope, GL17 — £349,950 • 4 bed • 1 bath
Land for sale in Springfield Road, Lydney, Gloucestershire, GL15 — £200,000 • 1 bed • 1 bath • 10684 ft²














