Full permission for a spacious five-bedroom family home on a large sunny plot.
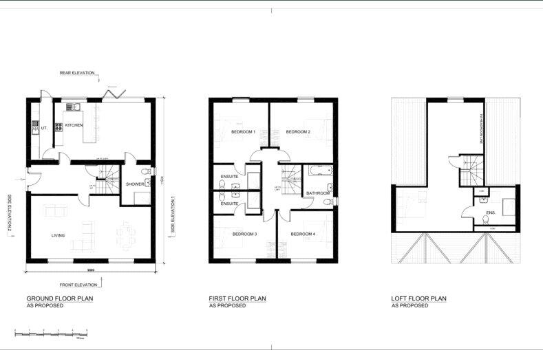
Full planning permission for a 5-bedroom detached home (Ref: P1474/24/FUL)
Large plot approx. 0.24 acres (993 sqm) with generous rear garden
Off-street parking space for two cars; vehicular frontage to Springfield Road
Elevated position with town outlooks; set in established residential area
Local broadband speeds slow — may affect home working or smart systems
Area classified as deprived; local crime levels are higher than average
Tenure unknown — buyers must confirm title and any restrictive covenants
Suitable for family dwelling or small-scale developer seeking build-ready plot
A substantial vacant plot on Springfield Road with full planning permission for a five-bedroom detached modern home (Planning Ref: P1474/24/FUL). The site sits within an established residential area of Lydney and is designed to deliver a family house with off-street parking for two cars and a generous rear garden. Elevated position gives pleasant outlooks over the town.
This parcel offers a straightforward development route for someone looking to build to their specification; full planning permission is already in place, reducing upfront planning risk. The plot extends to approximately 0.24 acres (993 sqm) and benefits from vehicular frontage to Springfield Road and a deep rear garden suitable for family use or landscaping.
Buyers should note a number of practical constraints: the local area records higher-than-average crime levels, broadband speeds are slow, and the neighbourhood is classified as relatively deprived. Tenure is currently unknown and should be checked as part of pre-contract enquiries.
For families the location is convenient for several nearby ‘Good’-rated primary and secondary schools and local amenities. For small-scale developers or investors the combination of full planning permission, a large plot and on-site parking makes this a clear opportunity, provided you factor in local market and infrastructure issues.
Plot for sale in Springfield Road, Lydney, GL15 — £225,000 • 1 bed • 1 bath
Plot for sale in Land - High Field Road, Cross Hands, Lydney, GL15 — £65,000 • 1 bed • 1 bath • 992 ft²
Land for sale in Joyford, Coleford, GL16 — £140,000 • 1 bed • 1 bath • 8276 ft²
Plot for sale in Building Plot, Ruardean Hill, Drybrook, GL17 — £495,000 • 1 bed • 1 bath
Land for sale in Upper Road, Pillowell, Lydney, Gloucestershire, GL15 — £50,000 • 1 bed • 1 bath • 4693 ft²
Residential development for sale in Coomb Drive, Cinderford, GL14 — £150,000 • 1 bed • 1 bath


























