N18 2DG - 3 bed spacious end terrace in Dysons Road, N18 2DG

View on Property Piper

3 bedroom end of terrace house for sale in Dysons Road, Tottenham, London, N18

Summary - 53 DYSONS ROAD LONDON N18 2DG

3 bed 1 bath End of Terrace

Traditional 3-bed with garden, garage and strong commuting links.
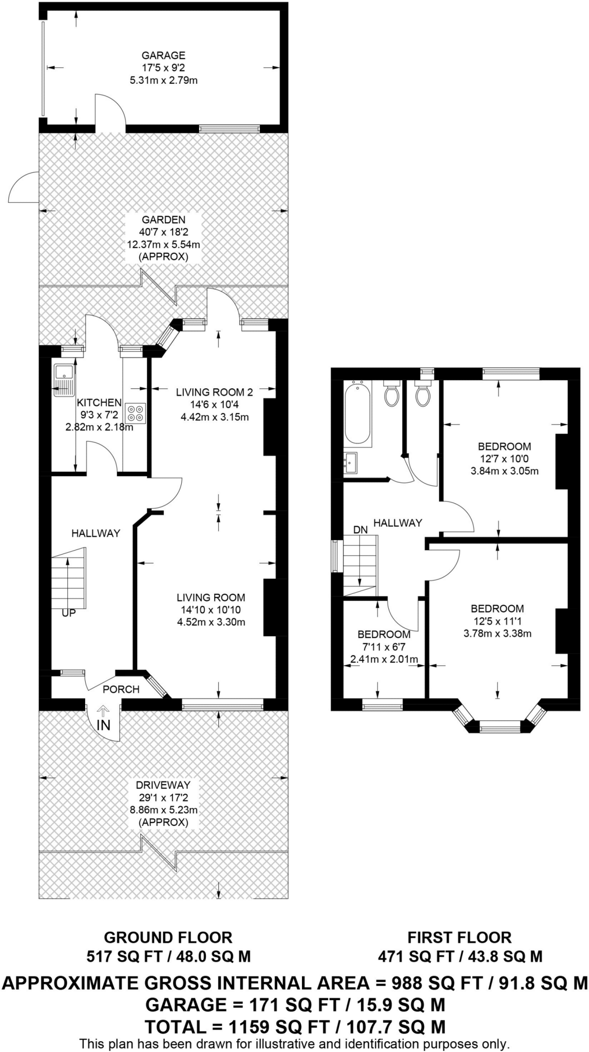
Three bedrooms with two reception rooms and separate kitchen
This three-bedroom end-of-terrace offers a traditional layout with two reception rooms, a separate kitchen and a long rear garden — well suited to growing families seeking space and storage. The property includes a large garage and generous driveway parking, a practical asset in this part of Tottenham. Its proximity to Meridian Water and Tottenham Hale provides straightforward commuting into central London and convenient local amenities.

Internally the house presents bright, contemporary-style rooms with double glazing and standard ceiling heights. There is clear potential to modernise further and add value — particularly by improving wall insulation and updating some services — while retaining the home's period charm from the mid-20th century. A single bathroom serves three bedrooms, so families should consider whether layout changes would be beneficial.

Buyers should be aware of notable local issues: the area is classified as very deprived and recorded crime levels are very high, which may affect long-term desirability and insurance or security costs. The plot is modest in size, so outdoor space is generous but not extensive. On balance this freehold, traditionally laid-out house offers practical living with scope for improvement and potential uplift for those prepared to invest.

Property Details

Image Descriptions

Floorplan Description

Rooms

Textual Property Features

Target Audience

AI Tags

Detected Visual Features

EPC Details

Nearby Schools

Nearest Bars And Restaurants

,,,,}

Nearest General Shops

,,}

Nearest Grocery shops

,,}

Nearest Supermarkets

,,}

Nearest Religious buildings

,,}

Nearest Medical buildings

,,,}

Nearest Airports

,}

Nearest Leisure Facilities

,,,,}

Nearest Tourist attractions

,,}

Nearest Train stations

,,,,}

Nearest Bus stations and stops

,,,,}

Nearest Hotels

,,}

Tags

Local Market Stats

AirBnB Data

Similar Properties

Meta

High Res Images

Compatible Images

Low res Images

Thumbnails

Raw Images

High Res Floorplan Images

Compatible Floorplan Images

Low res Floorplan Images

FloorplanImages Thumbnail

Raw Floorplan Images