Substantial property with separate annex and generous gardens close to Richmond.
Freehold, chain free sale on about 0.22 acre plot
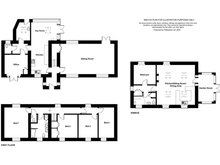
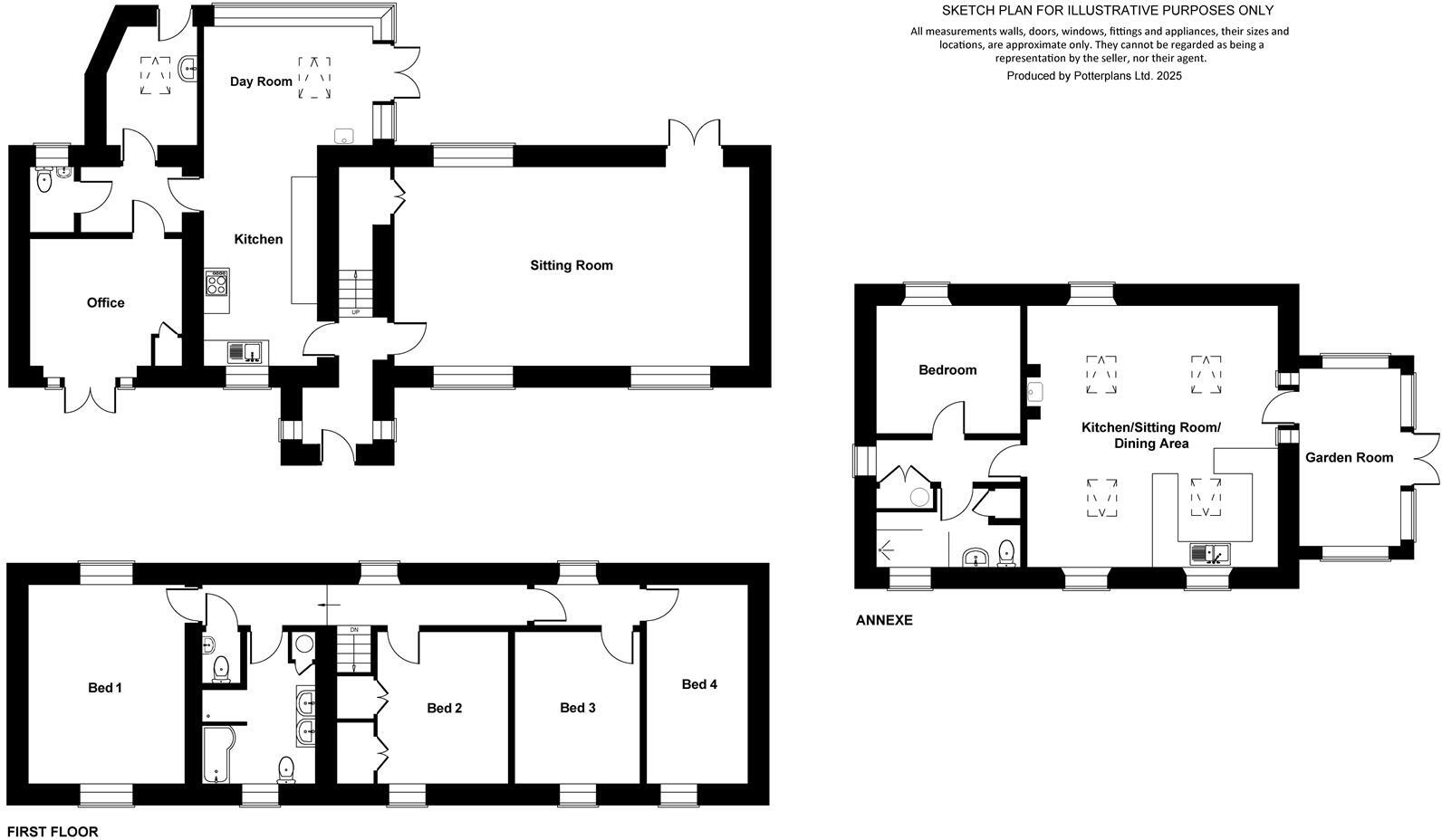
Main house: huge reception rooms and four good bedrooms
Detached self-contained annex (one-bed) with vaulted living space
Extensive parking for multiple vehicles and large greenhouse
South-facing patio, private enclosed rear gardens and patio
Annex is older construction; may require renovation or updating
EPC 54 (E), council tax band above average
Local broadband slow; annex uses oil heating, main house mains gas
Set behind five-bar gates on about 0.22 acre, this substantial character home and separate annex suit multi-generation families or those seeking rental potential. The main house offers generous reception rooms – including an 8.6m sitting room and a 7.7m kitchen/day room – plus four bedrooms and large family bathroom. High ceilings, oak and stone finishes, wood- and multifuel-stoves and abundant natural light create a warm, versatile living space.
The detached annex (approx. 75sqm) functions as self-contained accommodation with a vaulted kitchen/sitting room, garden room with underfloor heating, double bedroom and shower room. It’s ideal for guests, long-term rentals, or as an income-producing unit, while extensive gravel parking and a large greenhouse support hobbies or small-scale horticulture.
Practical points are candid: the property has an EPC rating of 54 (E), council tax is above average, and the annex is of older construction and may need renovation or upgrading. Broadband speeds are slow locally, and the annex uses oil heating while the main house has a mains-gas boiler and radiators. Sold freehold and chain free, the house offers excellent road links to Richmond, A1(M) and Scotch Corner for wider commuting.
3 bedroom semi-detached house for sale in Cookson Way, Brough with St Giles, North Yorkshire, DL9 4XG, DL9 — £189,000 • 3 bed • 2 bath • 754 ft²
4 bedroom property for sale in Hallgarth Court, Newsham, Richmond, DL11 — £524,950 • 4 bed • 3 bath • 2745 ft²
3 bedroom semi-detached house for sale in Ronaldshay Drive, Richmond, DL10 — £269,950 • 3 bed • 1 bath • 862 ft²
2 bedroom semi-detached house for sale in Richmond Road, Brompton On Swale, Richmond, DL10 — £450,000 • 2 bed • 2 bath • 3258 ft²
4 bedroom link detached house for sale in Lyons Road, Richmond, DL10 — £490,000 • 4 bed • 2 bath • 1852 ft²
3 bedroom barn conversion for sale in Whashton, Richmond, DL11 — £540,000 • 3 bed • 2 bath • 2741 ft²


























































































































































