CH7 4EJ - 5 bedroom detached house for sale in Nercwys, Mold, CH7

View on Property Piper

5 bedroom detached house for sale in Nercwys, Mold, CH7

Summary - 7 FRON HEULOG NERCWYS MOLD CH7 4EJ

5 bed 2 bath Detached

Characterful five-bedroom home with south-facing garden and countryside views.
Five bedrooms including master with four-piece en-suite
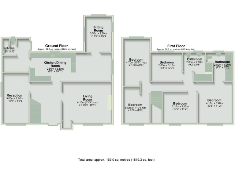
Fron Heulog is a spacious five-bedroom detached family house set on a decent plot in the rural village of Nercwys. The property offers versatile living with a large reception hall, separate reception room, open-plan kitchen/family room, sunroom and a cosy living room with a log fire — all arranged across a traditional two-storey layout. The master suite includes a four-piece en-suite and many rooms enjoy countryside views.

Externally the house benefits from off-street parking on a landscaped gravel driveway, gated storage area and a south-facing rear garden with decked seating, artificial lawn and raised rockery — a child-friendly private space with long views over neighbouring fields. At about 1,884 sq ft, the home provides generous room sizes for family living or flexible working-from-home arrangements.

Buyers should note a number of practical points: heating is by oil-fired boiler and the property is of solid brick construction with assumed no wall insulation, which may mean higher heating costs and future insulation work. The EPC is rated D and council tax is described as expensive. Broadband and mobile signals are average and the wider area is classified as very deprived despite very low crime and peaceful rural surroundings.

This house will suit buyers seeking characterful, roomy accommodation in a quiet hamlet near Mold (approx. 2 miles). It offers immediate family living with scope for energy-efficiency upgrades and cosmetic updating where desired. All measurements and details should be independently verified.

Property Details

Image Descriptions

Floorplan Description

Rooms

Textual Property Features

Target Audience

AI Tags

Detected Visual Features

EPC Details

Nearest Bars And Restaurants

,,,,}

Nearest General Shops

,,}

Nearest Grocery shops

,,}

Nearest Supermarkets

,,}

Nearest Religious buildings

,,}

Nearest Medical buildings

,,,}

Nearest Airports

}

Nearest Leisure Facilities

,,,,}

Nearest Tourist attractions

,,}

Nearest Train stations

,,,,}

Nearest Bus stations and stops

,,,,}

Nearest Hotels

,,}

Tags

Local Market Stats

Similar Properties

Meta

High Res Images

Compatible Images

Low res Images

Thumbnails

Raw Images

High Res Floorplan Images

Compatible Floorplan Images

Low res Floorplan Images

FloorplanImages Thumbnail

Raw Floorplan Images