Standout Features:
- Spacious 4-bedroom, 2-bathroom Victorian terraced home
- Expansive 2,366 sq. ft. of living space
- Beautiful period features, including high ceilings and bay windows
- Modernized kitchen with integrated appliances
- Welcoming reception hallway with traditional Edwardian architecture
- Private front and rear gardens with patio and off-street parking
- Convenient location in the affluent Newlands suburb of Glasgow
Potential Downsides:
- Council tax band F (expensive)
- Average mobile signal
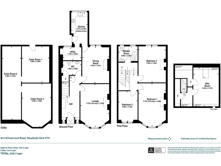
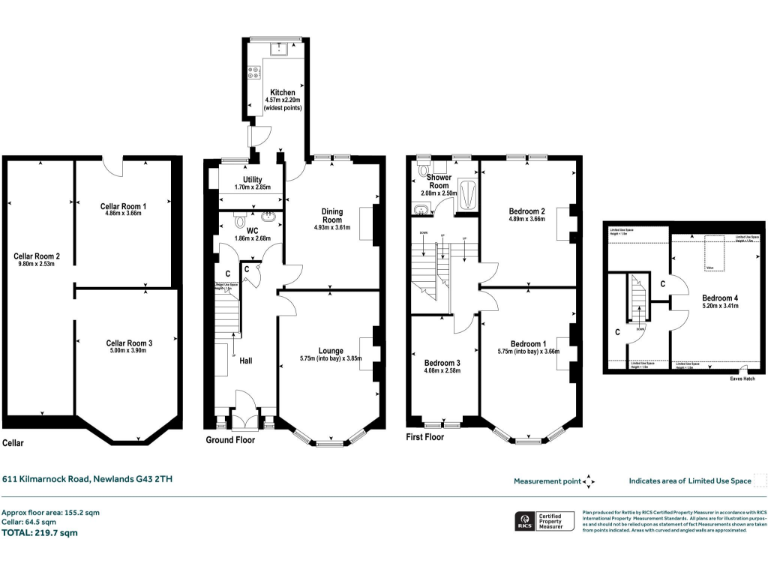
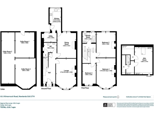
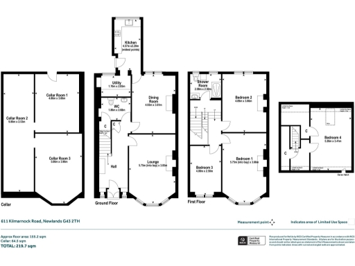
Experience the charm of this stunning sandstone terraced home in Newlands, an esteemed family-friendly suburb in Glasgow. Spanning over 2,366 sq. ft., this property offers ample living space, blending modern convenience with elegant Victorian character. The beautifully refurbished interior features a grand lounge with a fireplace, a delightful dining room, and a stylish kitchen complete with top-notch appliances. Ascend to the first floor to find generously sized bedrooms and a chic tiled shower room, while a spacious attic room with storage on the top floor provides additional living options.
The property boasts a lovely garden with separate patio areas, perfect for entertaining or relaxing, and off-street parking for added convenience. While the area enjoys access to nearby amenities and excellent transport links to Glasgow’s city center, it is positioned within an affluent community, significantly enhancing family living options. Situated in a prime location, this home promises not only comfort and space but also future potential for personalization. Don’t miss your chance to secure this exceptional property that beautifully marries character with functionality—homes in this sought-after neighborhood rarely stay on the market long!
4 bedroom semi-detached house for sale in Mossgiel Road, Newlands, G43 — £670,000 • 4 bed • 3 bath • 3654 ft²
3 bedroom terraced house for sale in Lochlea Road, Newlands, Glasgow, G43 — £350,000 • 3 bed • 1 bath • 986 ft²
4 bedroom semi-detached house for sale in Carlaverock Road, Newlands, Glasgow, G43 — £499,000 • 4 bed • 2 bath • 1956 ft²
4 bedroom terraced house for sale in 154 Nether Auldhouse Road, Newlands, Glasgow, G43 2YT, G43 — £349,000 • 4 bed • 1 bath • 1248 ft²
5 bedroom detached house for sale in Fernleigh Road, Newlands, Glasgow, G43 — £699,000 • 5 bed • 4 bath • 2472 ft²
4 bedroom terraced house for sale in 607 Kilmarnock Road, Newlands, G43 2TH, G43 — £475,000 • 4 bed • 2 bath • 2260 ft²














































































































































