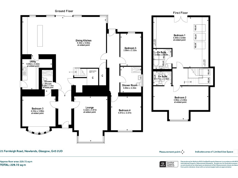
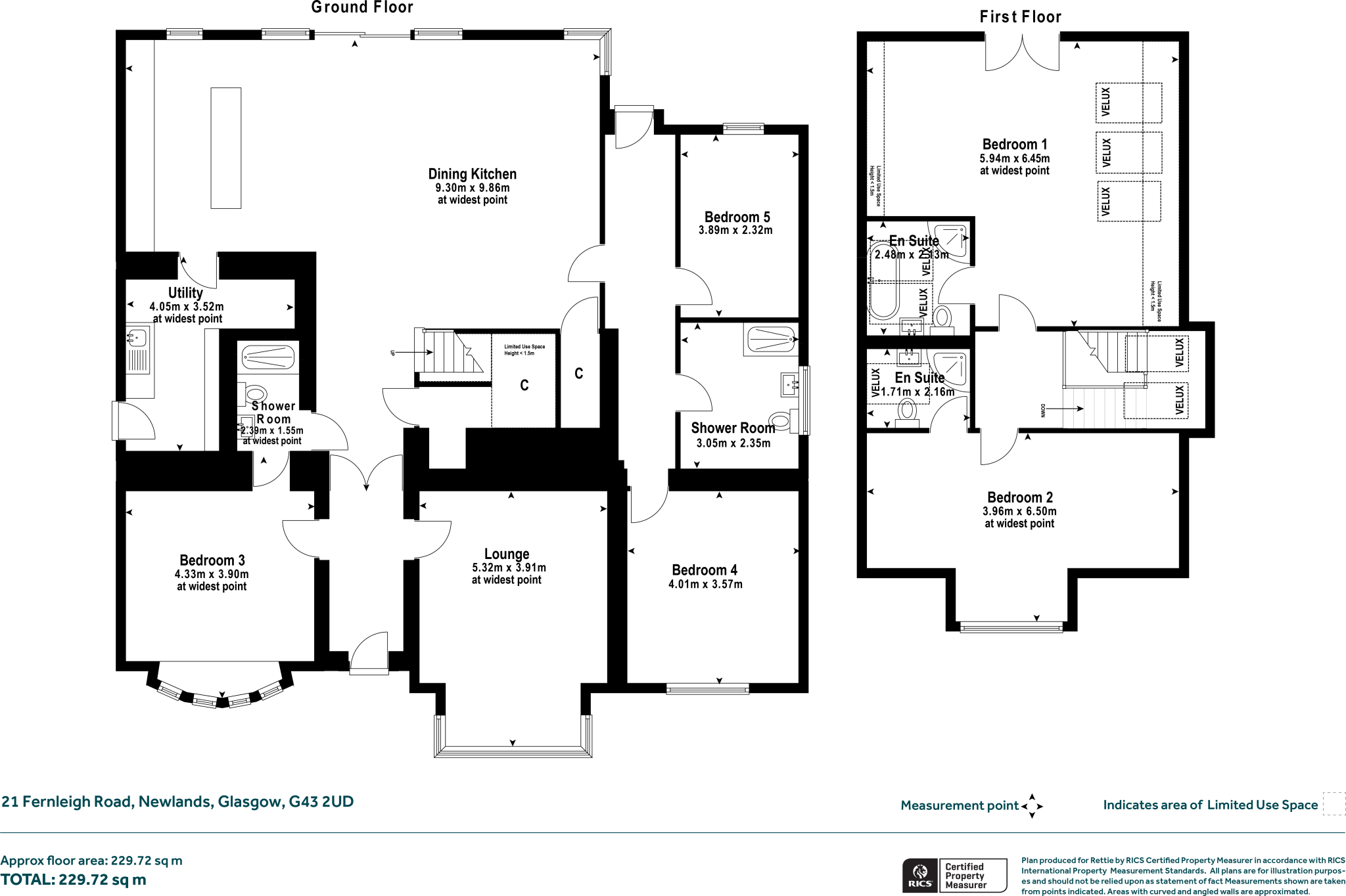
**Standout Features:**
- Newly renovated, contemporary detached home
- Spacious 5 bedrooms, 4 bathrooms
- Large kitchen/dining/living area with integrated appliances and stone worktop
- Expansive master suite with en-suite and French balcony
- Landscaped rear garden with decked areas
- Off-street parking and fast broadband
**Potential Downsides:**
- High council tax band (Band G)
- Average mobile signal
Discover an extraordinary, newly renovated detached home in the tranquil Newlands suburb, perfect for families seeking comfort and modern living. This spacious property boasts five well-appointed bedrooms and four stylish bathrooms across two levels, featuring a stunning kitchen/dining/living space ideal for entertaining. The impressive master suite offers a private balcony overlooking the beautifully landscaped garden, while additional flexible bedrooms cater to various living arrangements.
With significant renovations ensuring high-quality finishes throughout, including a bespoke staircase and abundant natural light from Velux windows, this home melds elegance with functionality. Enjoy peace of mind with double glazing, gas central heating, and a secure off-street parking space. Situated near local amenities and excellent transport links to Glasgow’s city center, this property is a rare find in an affluent community. Don’t wait—properties like this, with such a wonderful blend of modern comfort and potential, are truly unique and in high demand!
4 bedroom terraced house for sale in Kilmarnock Road, Newlands, Glasgow, G43 — £460,000 • 4 bed • 2 bath • 2366 ft²
4 bedroom semi-detached house for sale in 42 Kintore Road, Newlands, Glasgow, G43 2HA, G43 — £525,000 • 4 bed • 3 bath • 908 ft²
4 bedroom semi-detached house for sale in 44 Kintore Road, Newlands, Glasgow, G43 2HA, G43 — £525,000 • 4 bed • 3 bath • 1018 ft²
3 bedroom house for sale in 143 Mossgiel Road, Newlands, Glasgow, G43 2BY, G43 — £169,000 • 3 bed • 1 bath • 925 ft²
4 bedroom semi-detached house for sale in Mossgiel Road, Newlands, G43 — £670,000 • 4 bed • 3 bath • 3654 ft²
4 bedroom detached house for sale in Carnwath Avenue, Newlands, Glasgow, G43 — £499,000 • 4 bed • 2 bath • 2013 ft²






























































































































































































