Spacious four-bedroom house with private garden and garage.
Victorian terrace with high ceilings and bay windows
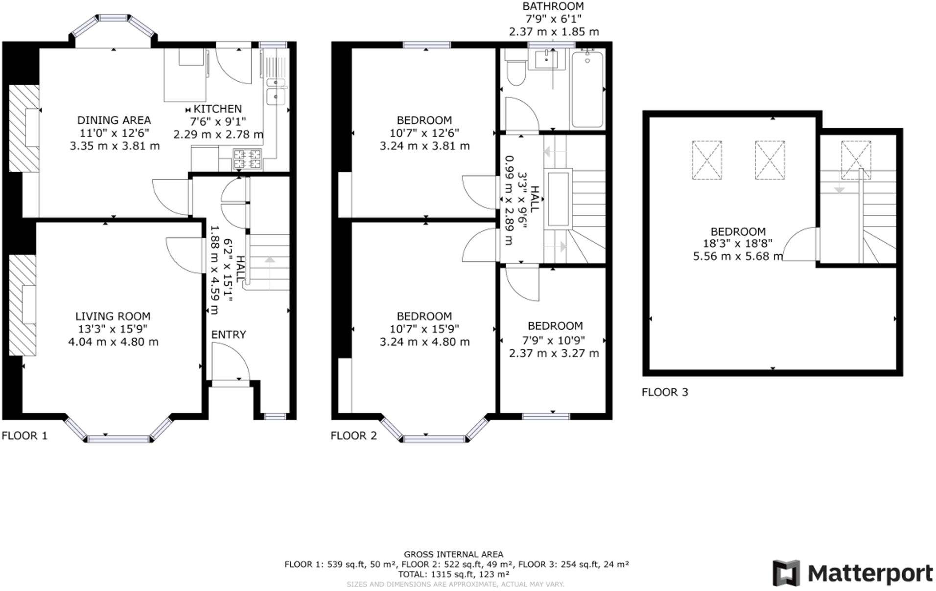
Set over three levels, this Victorian terraced townhouse provides flexible family accommodation with four bedrooms and traditional period detail. High ceilings, bay windows and a decorative fireplace give generous principal rooms a warm, characterful feel, while a converted attic with Velux windows creates a bright fourth bedroom or home office.
The dining-sized kitchen opens directly to a private rear garden and patio, suited to family life and outdoor entertaining. A powered garage accessed from the rear lane adds practical storage and off-street parking. Fast broadband and excellent mobile signal support home working and modern household needs.
Practical considerations: the house has a single family bathroom serving four bedrooms and is arranged over multiple floors with stairs throughout. Council tax is above average for the area, and the neighbourhood is classed as very deprived — buyers should check local services and support. The property is freehold and within easy reach of local shops, schools and motorway links for commuting.
Overall, this is a substantial, characterful family home in Newlands offering generous room sizes, outdoor space and strong connectivity, suitable for grown families seeking space and period features, with some practical compromises to factor in.
4 bedroom terraced house for sale in 446 Kilmarnock Road, Newlands, G43 2RL, G43 — £395,000 • 4 bed • 2 bath • 1862 ft²
4 bedroom terraced house for sale in Kilmarnock Road, Newlands, Glasgow, G43 — £460,000 • 4 bed • 2 bath • 2366 ft²
4 bedroom semi-detached house for sale in Woodburn Road, Newlands, Glasgow, G43 — £525,000 • 4 bed • 2 bath • 1675 ft²
3 bedroom terraced house for sale in 51 Lochlea Road, Newlands, G43 2YB, G43 — £350,000 • 3 bed • 1 bath • 1216 ft²
3 bedroom terraced house for sale in Nether Auldhouse Road, Newlands, Glasgow, G43 — £285,000 • 3 bed • 1 bath • 1018 ft²
4 bedroom semi-detached house for sale in Mossgiel Road, Newlands, G43 — £670,000 • 4 bed • 3 bath • 3654 ft²






































































































