Practical starter home with garden and parking close to Seaham amenities.
New-build two-bedroom mews, approx. 592 sq ft
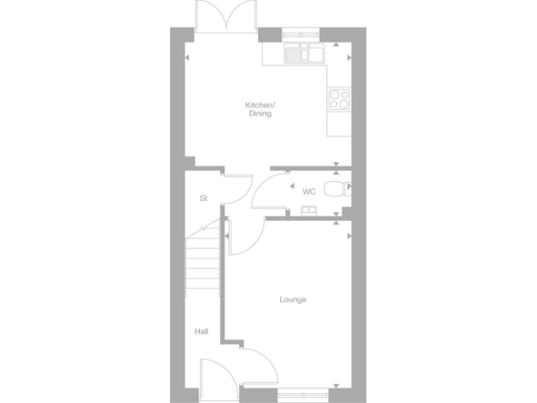
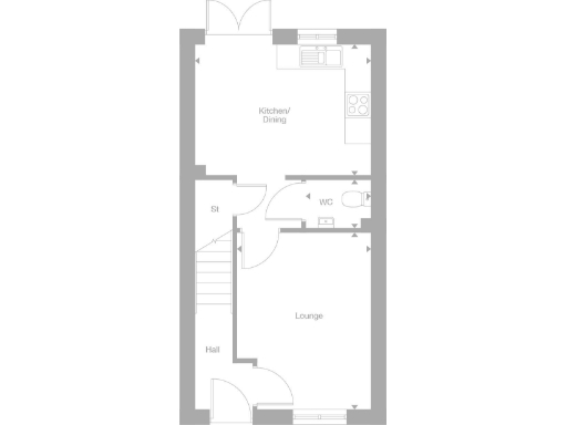
A compact, newly built two-bedroom mews home on Seaham Garden Village tailored to first-time buyers seeking low-maintenance living. The ground floor offers a generous lounge that flows into an open-plan kitchen and dining area with French doors onto a private rear garden — a bright, practical space for everyday life and entertaining. The layout includes a handy guest WC and good built-in storage.
Upstairs the principal bedroom benefits from an en-suite shower, plus there is a sizable second double bedroom and a modern family bathroom. Off-street parking and a small garden add useful outdoor and practical space. The property is Freehold and comes with a modest annual service charge of £119.
Important practical points: this is a small home (approximately 592 sq ft) intended as a starter property rather than a long-term family house. The development sits in an area assessed as very deprived, which may affect local amenities and long-term value. Council tax band is not yet confirmed, and there is a £500 reservation fee for plots; optional extras from the developer are available at additional cost. The home has no flood risk and benefits from excellent mobile signal and fast broadband, supporting remote working and connectivity.
2 bedroom mews property for sale in Seaham Garden Village,
Seaham,
Durham,
SR7 8FB, SR7 — £170,000 • 2 bed • 1 bath • 592 ft²
3 bedroom mews property for sale in Seaham Garden Village,
Seaham,
Durham,
SR7 8FB, SR7 — £181,000 • 3 bed • 1 bath
2 bedroom semi-detached house for sale in Seaham Garden Village,
Seaham,
Durham,
SR7 8FB, SR7 — £185,000 • 2 bed • 1 bath • 592 ft²
3 bedroom semi-detached house for sale in Seaham Garden Village,
Seaham,
Durham,
SR7 8FB, SR7 — £209,000 • 3 bed • 1 bath • 596 ft²
4 bedroom detached house for sale in Seaham Garden Village,
Seaham,
Durham,
SR7 8FB, SR7 — £355,000 • 4 bed • 1 bath • 988 ft²
3 bedroom end of terrace house for sale in Seaham Garden Village,
Seaham,
SR7 8FF, SR7 — £234,995 • 3 bed • 1 bath • 765 ft²


























































