Turnkey starter home with garden and parking for first-time owners.
- New-build two-bedroom mews with modern fixtures and fittings
- Open-plan kitchen/diner with French doors to rear garden
- Principal bedroom includes an en-suite shower room
- Off-street parking space and rear garden
- Small overall internal size (~592 sq ft)
- Annual service charge £119, freehold tenure stated
- Local area recorded as very deprived, may affect resale
- £500 reservation fee; council tax band TBC
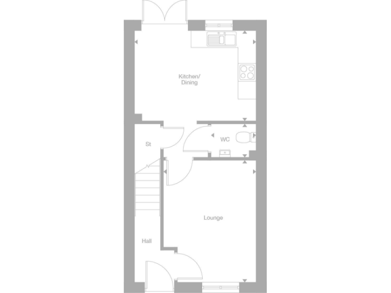
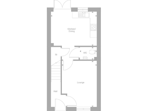
This two-bedroom new-build mews home in Seaham Garden Village offers a compact, modern layout suited to first-time buyers seeking low-maintenance living. The layout includes a generous lounge, open-plan kitchen/dining with French doors to a rear garden, a principal bedroom with en-suite, and useful storage throughout.
Practical extras include an off-street parking space, fast broadband and excellent mobile signal — useful for hybrid working and everyday connectivity. The development is energy-efficient by design, and the property is freehold with a below-average annual service charge of £119.
Buyers should note the overall internal size is small (approximately 592 sq ft), and the local area is recorded as very deprived, which may affect long-term resale and local services. There is a £500 reservation fee and the council tax band is yet to be confirmed. For someone prioritising a modern, turnkey starter home with low running needs, this delivers good value; those needing larger rooms or a more affluent neighbourhood may find the footprint and location limiting.
2 bedroom mews property for sale in Seaham Garden Village,
Seaham,
Durham,
SR7 8FB, SR7 — £172,000 • 2 bed • 1 bath • 592 ft²
3 bedroom mews property for sale in Seaham Garden Village,
Seaham,
Durham,
SR7 8FB, SR7 — £181,000 • 3 bed • 1 bath
4 bedroom detached house for sale in Seaham Garden Village,
Seaham,
Durham,
SR7 8FB, SR7 — £355,000 • 4 bed • 1 bath • 988 ft²
2 bedroom semi-detached house for sale in Seaham Garden Village,
Seaham,
Durham,
SR7 8FB, SR7 — £185,000 • 2 bed • 1 bath • 592 ft²
3 bedroom semi-detached house for sale in Seaham Garden Village,
Seaham,
Durham,
SR7 8FB, SR7 — £209,000 • 3 bed • 1 bath • 596 ft²
3 bedroom end of terrace house for sale in Seaham Garden Village,
Seaham,
SR7 8FF, SR7 — £234,995 • 3 bed • 1 bath • 765 ft²


























































