Ideal starter home with open-plan living and private rear outside space.
- New-build, energy-efficient three-bedroom mews
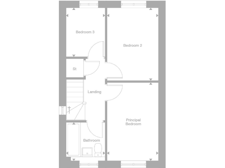
This newly built three-bedroom mews offers bright, practical family living in Seaham Garden Village. The ground floor features a large lounge with an integrated staircase and an open-plan kitchen/dining area with French doors that open directly onto the rear garden — ideal for indoor-outdoor family days.
Upstairs are two spacious double bedrooms and a third single room that works well as a nursery or a home office. The property has a modern family bathroom and benefits from off-street parking and energy-efficient new-build construction, keeping running costs lower than older homes.
Practical considerations are clear: there is only one family bathroom, the garden and plot sizes are modest, and the surrounding area records higher levels of deprivation which may affect resale dynamics. Annual service charge of £119 applies and a £500 reservation fee is required. Council tax band is yet to be confirmed.
Overall this home suits first-time buyers or young families seeking a low-maintenance, move-in-ready property with good digital connectivity and straightforward layout, while buyers should factor in the local socio-economic context and modest external space.
2 bedroom mews property for sale in Seaham Garden Village,
Seaham,
Durham,
SR7 8FB, SR7 — £170,000 • 2 bed • 1 bath • 592 ft²
3 bedroom semi-detached house for sale in Seaham Garden Village,
Seaham,
Durham,
SR7 8FB, SR7 — £209,000 • 3 bed • 1 bath • 596 ft²
2 bedroom mews property for sale in Seaham Garden Village,
Seaham,
Durham,
SR7 8FB, SR7 — £172,000 • 2 bed • 1 bath • 592 ft²
4 bedroom detached house for sale in Seaham Garden Village,
Seaham,
Durham,
SR7 8FB, SR7 — £355,000 • 4 bed • 1 bath • 988 ft²
4 bedroom detached house for sale in Seaham Garden Village,
Seaham,
Durham,
SR7 8FB, SR7 — £315,000 • 4 bed • 1 bath • 816 ft²
3 bedroom end of terrace house for sale in Seaham Garden Village,
Seaham,
SR7 8FF, SR7 — £234,995 • 3 bed • 1 bath • 765 ft²


















































