**Standout Features:**
- Substantial freehold property with two self-contained units
- Prime location in Southport Town Centre
- Potential for redevelopment or alternative uses (subject to necessary consents)
- Historic Victorian architecture
- Off-street parking available
- Excellent mobile and broadband connectivity
- Offered with vacant possession, chain-free
**Summary:**
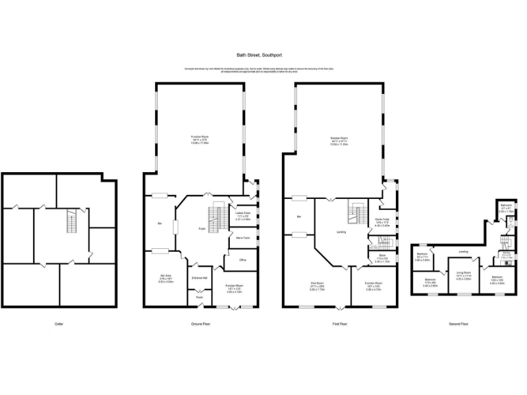
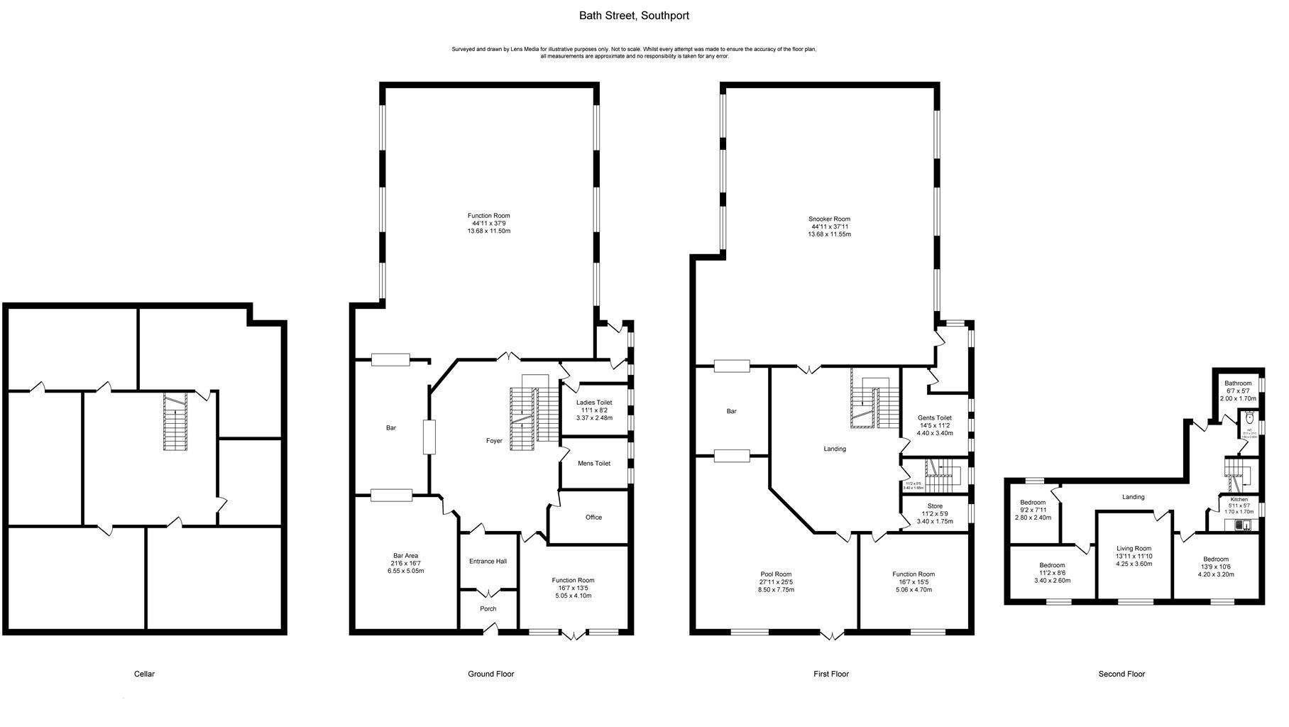
This impressive former Conservative Club, located in the heart of Southport, presents a unique redevelopment opportunity. Spanning a generous 7,139 square feet across two elegantly designed self-contained premises, the property offers significant potential for conversion into residential units, commercial spaces, or mixed-use developments. The classic Victorian structure boasts high ceilings and a charming aesthetic, while an array of nearby amenities—including shops, schools, and entertainment venues—add to its appeal.
Prospective buyers will appreciate the property's versatile layout, featuring large open areas that can easily accommodate various uses. While located in a bustling urban setting, the area faces certain challenges, including high crime rates and economic constraints, which may require consideration in development plans. The building is presented with vacant possession, allowing for immediate transformation opportunities. Seize this chance to invest in a dynamic area with endless potential!
Office for sale in 132 Lord Street, Southport, Merseyside, PR9 — £375,000 • 1 bed • 1 bath • 5000 ft²
Office for sale in Adelphi Chambers, To The Rear Of 30 Hoghton Street, Southport, Merseyside, PR9 — £330,000 • 1 bed • 1 bath • 4093 ft²
Commercial property for sale in West Street/Waverley Street, Southport, PR8 — £495,000 • 1 bed • 1 bath • 6800 ft²
Commercial property for sale in Victoria Court, 1-5, London Street, Southport, Merseyside, PR9 — £450,000 • 1 bed • 1 bath • 2557 ft²
Land for sale in Former Victoria Baths, 42-43 Promenade, Southport, Merseyside, PR9 — POA • 1 bed • 1 bath • 14208 ft²
Commercial property for sale in 199-201 Lord Street, Southport, Merseyside, PR8 — £350,000 • 1 bed • 1 bath • 2430 ft²


















































































