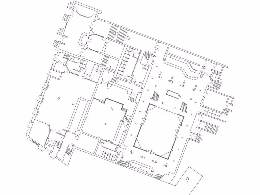
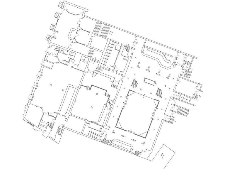
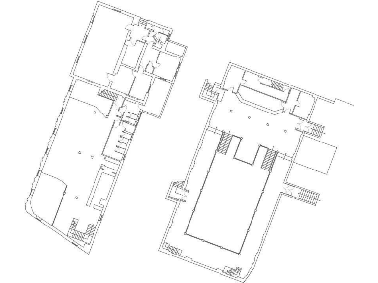
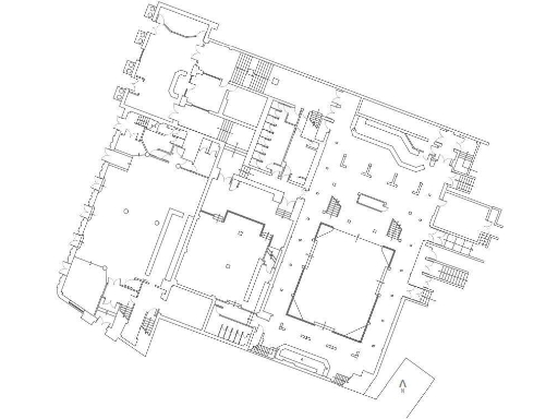
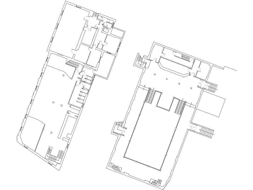
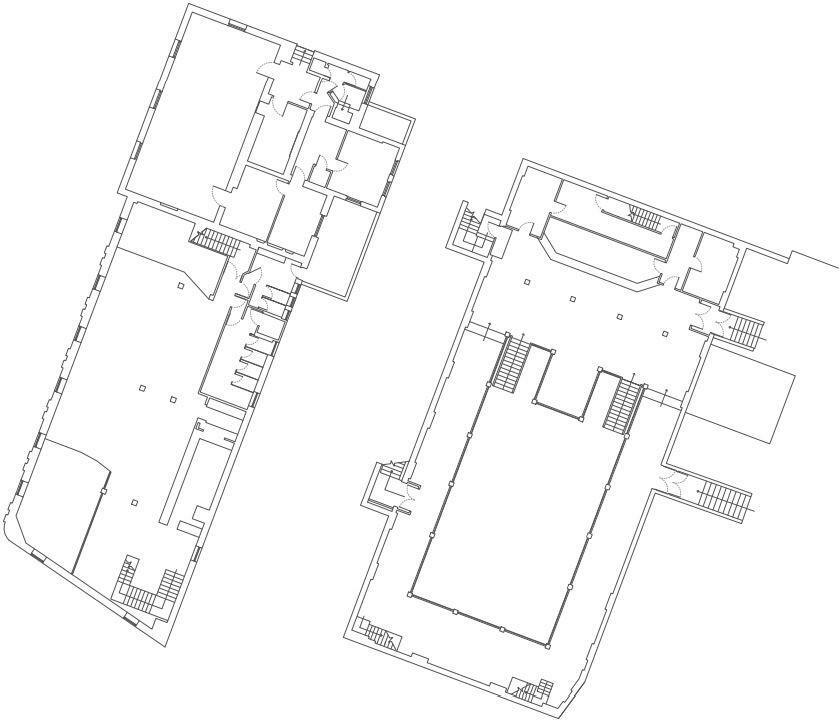
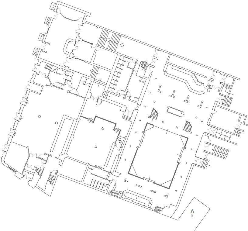
**Property Highlights:**
- **Type:** Land opportunity at Former Victoria Baths
- **Size:** Approximately 1,320 sqm (14,208 sqft) with basements
- **Status:** Grade II listed building
- **Location:** Seafront promenade in Southport, Merseyside
- **Investment Potential:** Long leasehold, with flexible development opportunities
- **Repairs:** Extensive external repairs completed costing £395,000 by March 2021
- **Community Appeal:** Located in a vibrant tourist area, with potential for regeneration and community-focused projects
This exceptional investment opportunity at the Former Victoria Baths presents over 1,300 sqm of prime land, ideally situated along Southport’s scenic seafront promenade. As a Grade II listed building, it boasts beautiful Victorian architecture with ornate stone arched windows and high ceilings, offering a historically rich setting ripe for reimagining. Recent repairs totaling £395,000 have made significant strides in safeguarding the structure's integrity, making it more inviting for potential developers who envision transforming this iconic space into a community hub, leisure facility, or tourist attraction.
The potential for this site is significant, especially as it lies within a cosmopolitan neighbourhood, just a stone’s throw from local amenities such as shopping centres, restaurants, and entertainment options. While it's essential to note that further renovations may require careful planning given its listing status, interested investors are strongly encouraged to consider the possibilities that lie ahead. With no formal guide price, this unique opportunity invites imaginative offers to breathe new life into a beloved historical landmark that has been central to Southport's charm for nearly two centuries. Don't miss out on your chance to be part of the town's exciting future!
Land for sale in 14a Hoghton Street, Southport, Merseyside, PR9 — £100,000 • 1 bed • 1 bath • 3534 ft²
Land for sale in 20/22 Bath Street, Southport, Merseyside, PR9 — £500,000 • 1 bed • 1 bath • 7139 ft²
Hotel for sale in Albert & Victoria Hotel, 37-38 The Promenade, Southport, Merseyside PR8 1QU, PR8 — £425,000 • 1 bed • 1 bath
Office for sale in 132 Lord Street, Southport, Merseyside, PR9 — £375,000 • 1 bed • 1 bath • 5000 ft²
Commercial property for sale in Victoria Court, 1-5, London Street, Southport, Merseyside, PR9 — £450,000 • 1 bed • 1 bath • 2557 ft²
Commercial property for sale in 199-201 Lord Street, Southport, Merseyside, PR8 — £350,000 • 1 bed • 1 bath • 2430 ft²






























