Large mixed-use building with strong redevelopment potential in central Southport.
- Over 5,000 sq ft NIA across basement to third floor
- Dual ground-floor access from Lord Street and Post Office Avenue
- Vacant possession on completion (tenant relocated)
- Upper floors unoccupied and require significant modernisation
- Suitable for office use or residential conversion (consents required)
- Located in Lord Street Conservation Area; not listed
- No VAT on purchase price
- High-crime, very deprived local area; factor letting risk
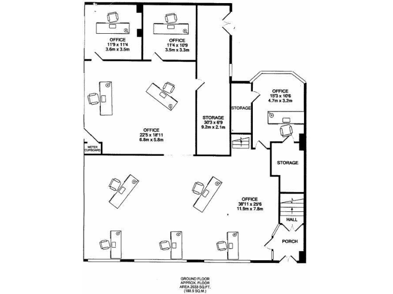
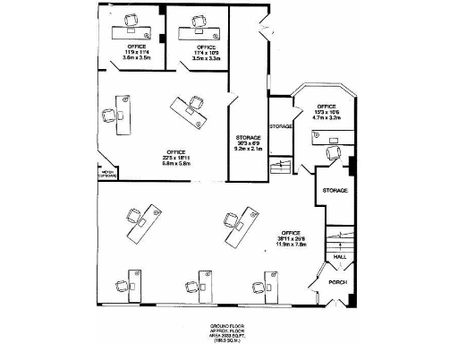
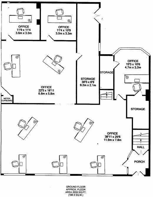
An imposing Victorian commercial building on Lord Street, offering over 5,000 sq ft across basement to third floor. The ground floor has dual entrances from Lord Street and Post Office Avenue and currently provides open-plan office space, storage and a rear courtyard — useful for servicing or light external storage.
Upper floors include a mix of private offices, open-plan areas, kitchen and WC facilities but have been largely unoccupied for many years and require significant modernisation and repair. The property sits within the Lord Street Conservation Area (not listed), which supports retention of period character but means alterations and any residential conversion will require the necessary consents.
This is a clear redevelopment and investment opportunity: vacant possession on sale, no VAT on the purchase price and a prominent, architecturally distinctive façade that will appeal to buyers seeking character-led schemes. Equally, the building is best suited to purchasers prepared for extensive refurbishment and to manage costs associated with converting older stock in a high-deprivation, high-crime area.
Suitable for continued office use or conversion to residential subject to planning, the asset will suit developers, investors or owner-occupiers able to fund repair and compliance works. Buyers should budget for modernisation, structural/ services upgrades and the planning process required within a conservation area.
Office for sale in 15 Anchor Street, Southport, Merseyside, PR9 — £149,950 • 1 bed • 1 bath • 1600 ft²
Commercial property for sale in 199-201 Lord Street, Southport, Merseyside, PR8 — £325,000 • 1 bed • 1 bath • 2430 ft²
High street retail property for sale in 81 Eastbank Street, Southport, Southport, Merseyside, PR8 — £185,000 • 1 bed • 1 bath • 1500 ft²
High street retail property for sale in 287/291 Lord Street, Southport, PR8 1NY, PR8 — £400,000 • 1 bed • 1 bath • 4349 ft²
High street retail property for sale in 24 London Street, Southport , PR9 — £189,950 • 1 bed • 1 bath • 1300 ft²
Office for sale in Regent House, 32 Princes Street, Southport, Southport, Merseyside, PR8 — £239,950 • 1 bed • 1 bath • 2122 ft²






































































































